无锡蠡湖金茂府122㎡现代三居室样板间装修设计施工图+效果图+PPT - CAD图库丨图纸 酷模设计吧-名师方案-设计案例-软装素材-CAD素材-SU/3D模型-设计师干货打包下载!

无锡蠡湖金茂府122㎡现代三居室样板间装修设计施工图+效果图+PPT

[复制链接]
kuum 发表于 2020-9-29 16:05:27 | 显示全部楼层 |阅读模式
家装空间
家装分类: 精品样板间
风格分类: 现代简约
请点击此处下载

请先注册会员后再进行下载

已注册会员,请先登录后下载

售价:45 酷币  |   | 收藏数量:9  
下载权限: 不限  (已享有下载权限 ) 以上或 VIP会员   [开通 VIP 会员]  [下载说明,如何下载?]

. }2 i( B# ^: ^5 U! m: _# w  _% I
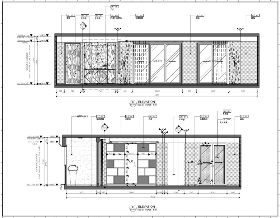
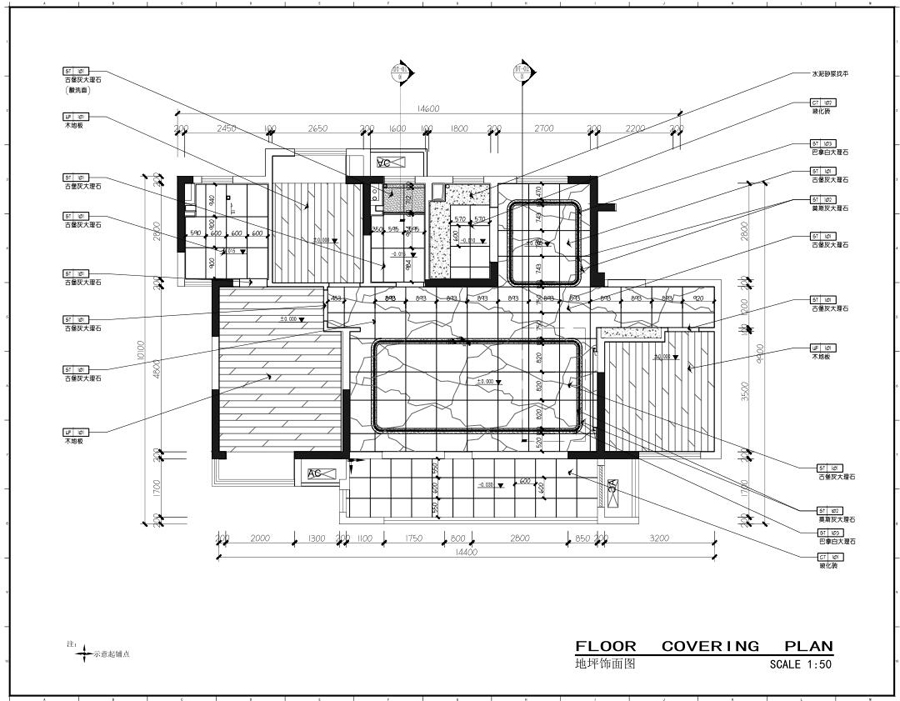
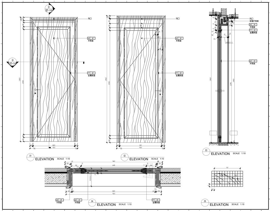
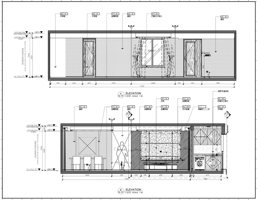
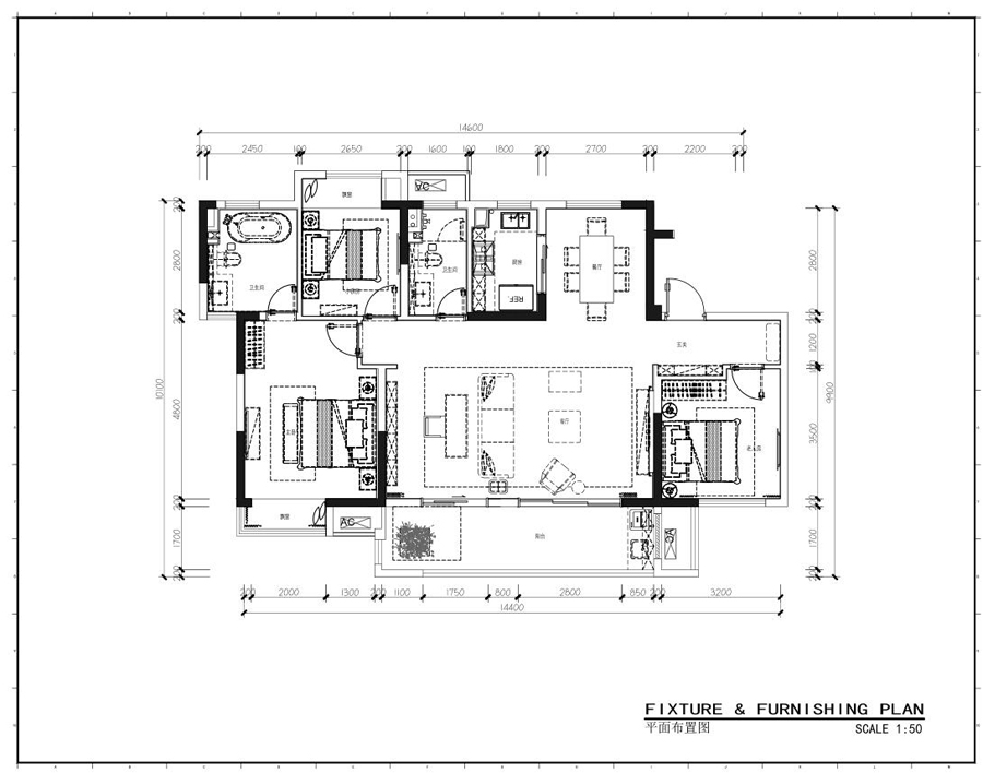
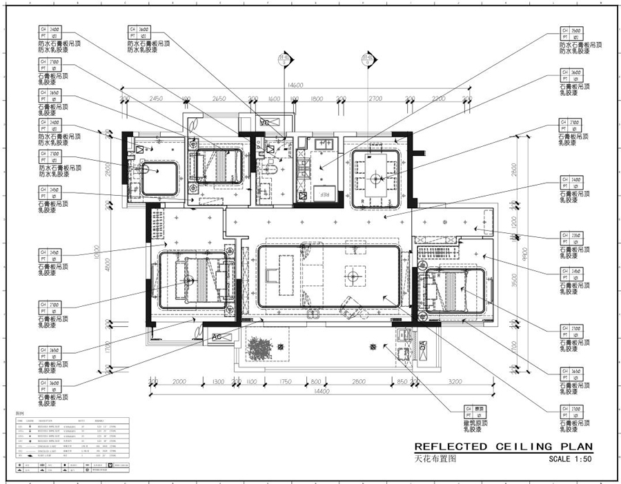
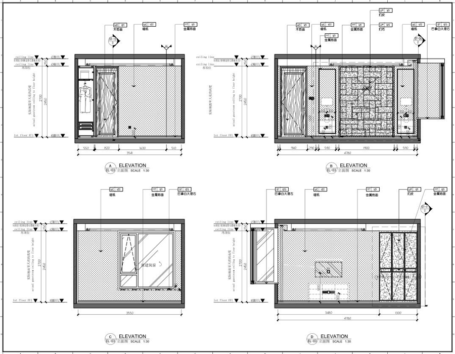
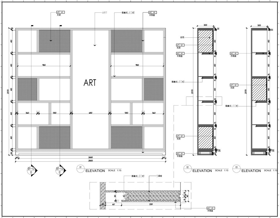
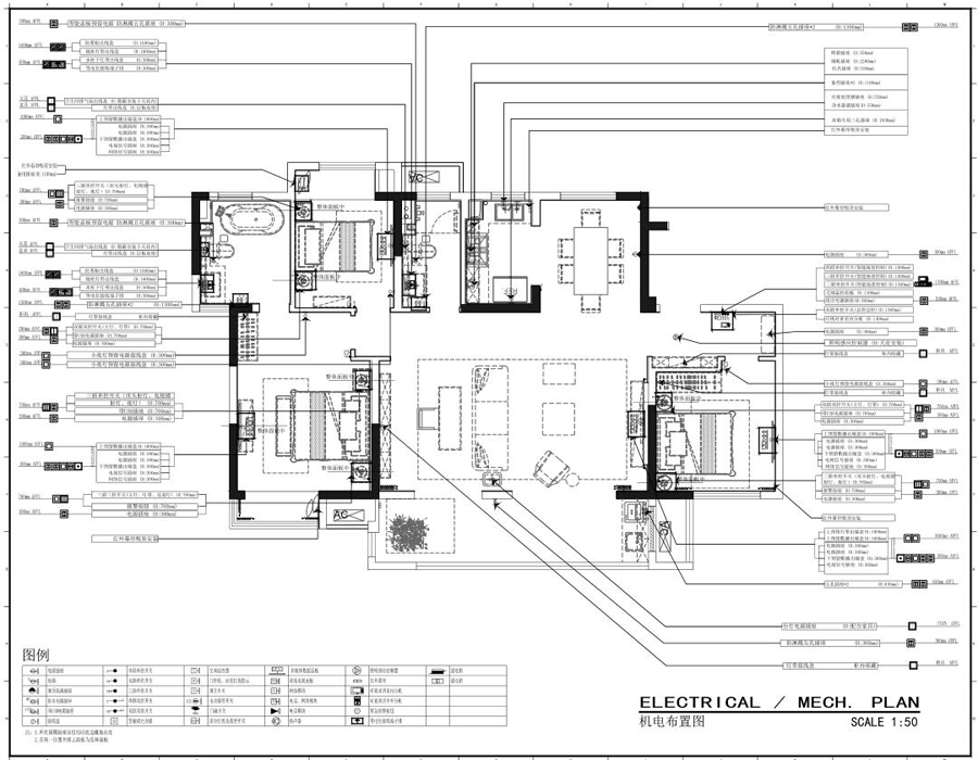
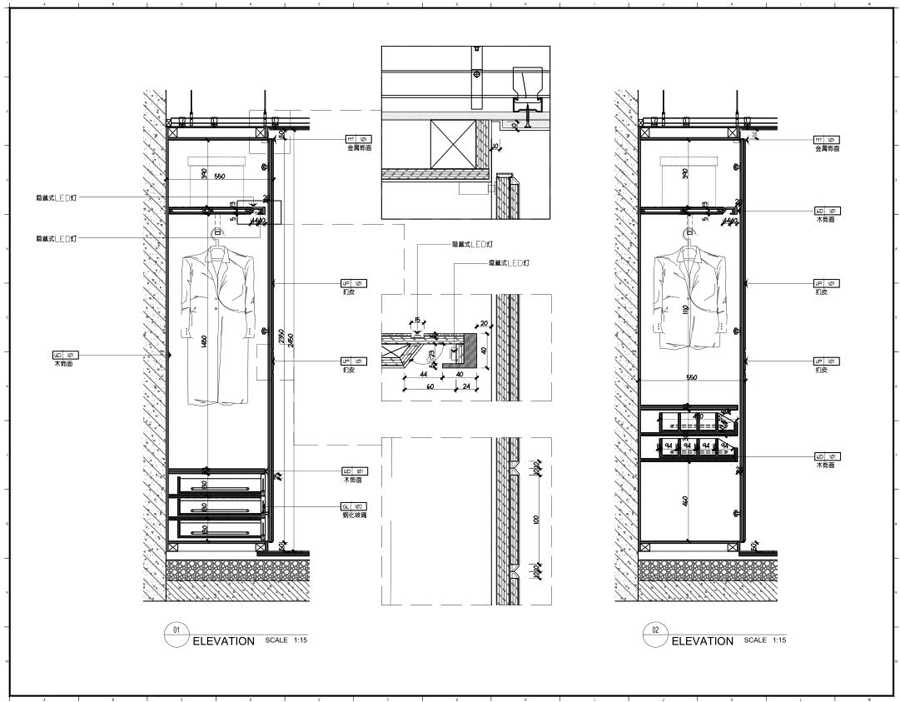
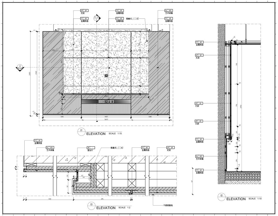
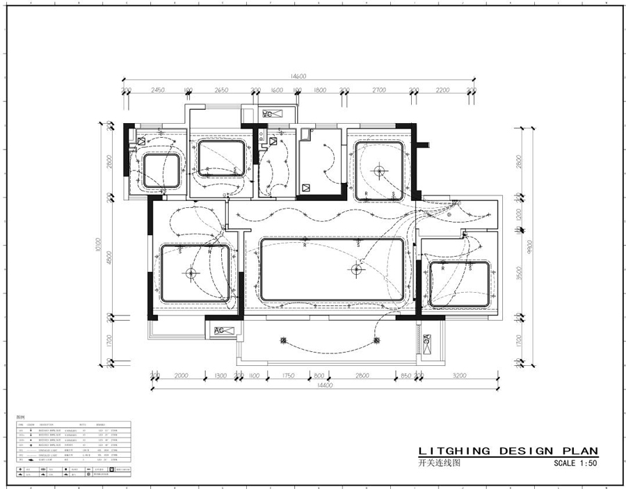
[江苏]无锡蠡湖金茂府122㎡现代三居室样板间装修设计工程施工图
- r4 |( ^$ [6 W! Y; M" C资料内容包含:内装CAD施工图(封面,图纸目录,施工图设计说明、平面图,立面图,节点大样,机电,给排水等)材料表,物料书,设计方案等
* M# T( A7 R: h9 ^; B. I+ p; ]4 |) B空间划分:三居室
+ l+ b" q/ I; r结构类型:平层) g; F! X& Q' `- A0 a7 ^7 h$ V1 ?
图纸深度:施工图* @1 U* h( M  U9 C
设计风格:现代风格
/ L# u' {1 I( p, ~9 ? 01.jpg
8 [5 o1 b' C9 ?: G! L; P 02.jpg " M, a! s4 T7 I. m1 B
03.jpg
% g; [, T2 V- D1 j" J: e/ j$ W 04.jpg 8 z/ r% x+ B: P) J# ]& d
05.jpg
) n7 Z" E! Q$ a" I 06.jpg
; c$ V# A& {% X. T8 r9 Q 07.jpg 1 b3 f5 Q' }) Y; `: d
08.jpg
0 J/ t7 W3 _7 P& U! l0 B 09.jpg ) u- Z. w- }- W. y2 G# Z
11.jpg
* G  d$ R/ r4 t) S+ K. o# x 12.jpg 4 l7 I: S# |, F3 L9 h7 p
13.jpg 4 k2 \) R% T" T* ?6 w- w: O) R, w: M6 w
14.jpg
6 j7 Y% ^5 g: H& y" Z) ^, S 15.jpg
2 b9 W; Q" J$ T0 z2 [5 v 16.jpg 9 _% b+ }) C2 h, w. q/ b
17.jpg
" A5 K6 b# m( n4 _8 y' y# U" x9 B 客餐厅2.jpg - H  g& x% u, B+ |. w4 ~" D
客厅1.jpg # D# M  V# T7 E5 _( o
图片1.jpg
1 w) B, |" x# n0 I 卧室.jpg 0 Q# }) o1 R/ C' Q% K
* {. w' U: g* o' M+ P# Y- d
回复

使用道具 举报

免责申请:①本站仅提供上传平台服务,用户可上传资料且通过审核后可获取“酷币”,每日登录也可免费获得;会员费用仅作用于平台服务费! ②本站不提供任何保证,并不承担任何法律责任,如有侵犯您的相关权益,请提供相应的资质证明,邮件联系站长删除!
在线客服(工作时间:10:00-22:00)
设计干货分享

Copyright   ©2015-2016  酷模吧  Powered by©技术支持:www.kumo8.com     ( 苏ICP备19074792号-1 )