武汉515M2大平层私宅丨施工图+效果图+官方摄影+3D模型 - CAD图库丨图纸 酷模设计吧-名师方案-设计案例-软装素材-CAD素材-SU/3D模型-设计师干货打包下载!

武汉515M2大平层私宅丨施工图+效果图+官方摄影+3D模型

[复制链接]
kuum 发表于 2020-10-15 15:15:36 | 显示全部楼层 |阅读模式
家装空间
家装分类: 精品样板间
风格分类: 现代简约
请点击此处下载

请先注册会员后再进行下载

已注册会员,请先登录后下载

售价:55 酷币  |   | 收藏数量:7  
下载权限: 不限  (已享有下载权限 ) 以上或 VIP会员   [开通 VIP 会员]  [下载说明,如何下载?]

9 P. H7 `2 c# h$ U* q5 h
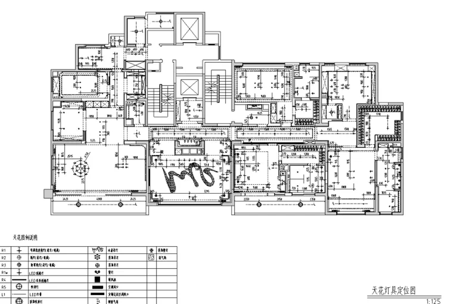
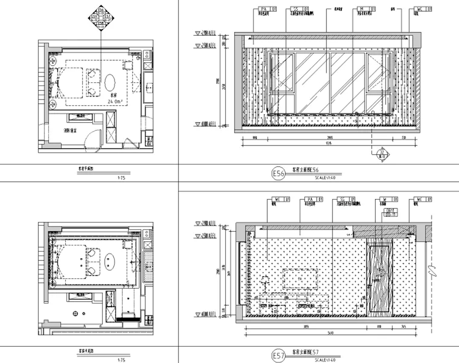
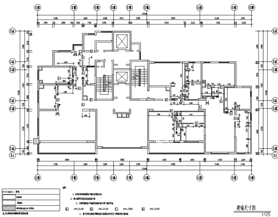
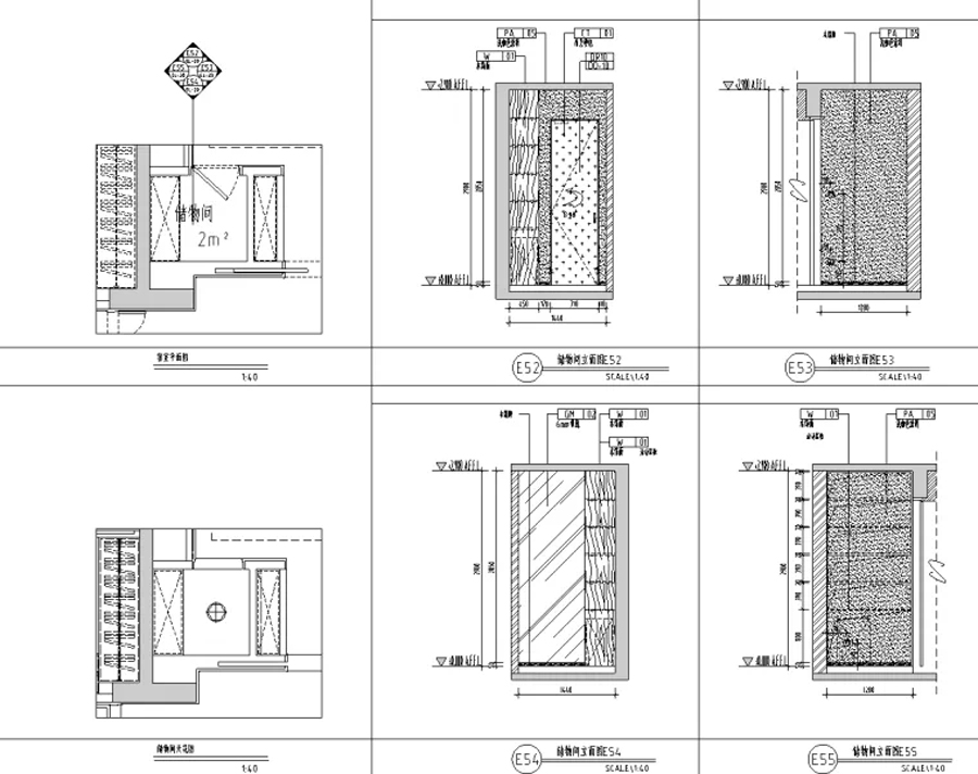
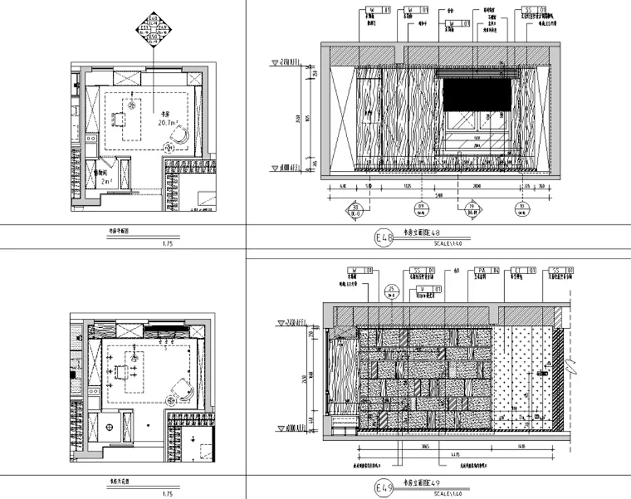
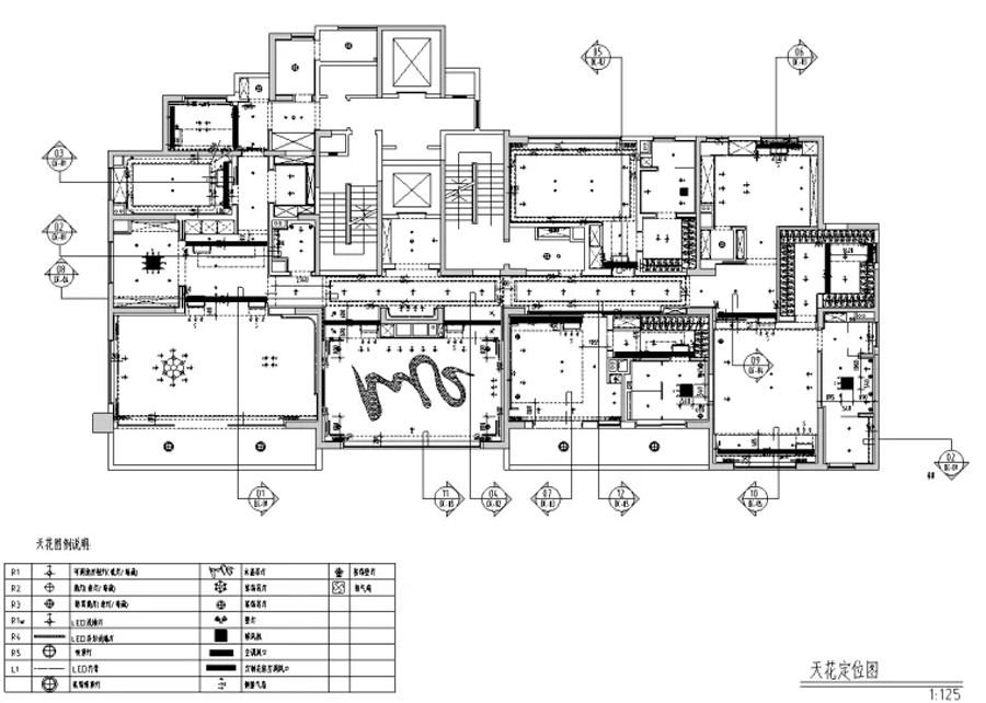
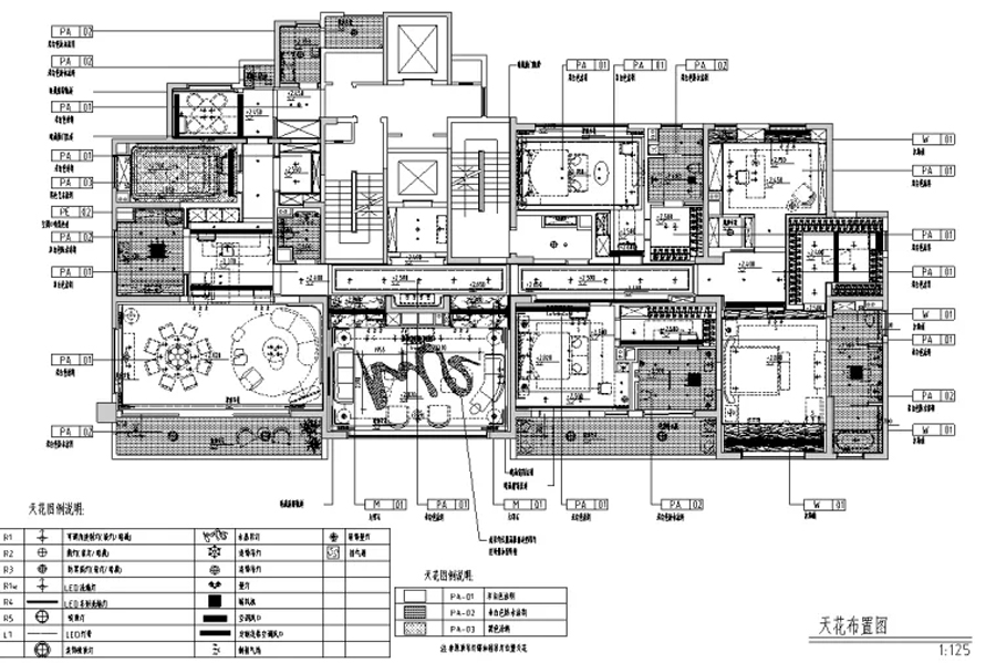
[湖北]武汉天地云廷515M大平层私宅丨简介效果图9P施工图官方摄影27P3D模型
0 j7 r6 z1 h' i' c资料内容包含:室内CAD施工图(封面,平面系统图,立面系统图,节点大样,墙身大样,天花大样,柜体大样等其他施工图图纸),效果图,物料书,3D模型,官方摄影等
9 ~+ v2 Q9 r8 z6 J- t$ z9 m/ e空间划分:三居室# y2 D# K* Z$ e1 O% L& K2 F6 z
结构类型:平层
6 l) H4 b; E  D* Y- H图纸深度:施工图- }: M7 m+ o) ]( u& n, `
项目位置:湖北
8 Y3 ?$ E5 O% `3 U3 f1 L3 r设计风格:现代风格
0 h& b; h/ b5 e. ^$ m) C% t图纸格式:JPG,CAD2000,DOC
5 z) V* w& b8 S7 s, M包含图片:效果图
4 P. z6 f& Q, \  o建筑面积:515㎡
, C7 Y- w3 G, ]* `+ ^0 A 01.jpg
2 _8 ~: ^: P- o# B/ r/ X; A 02.jpg
" j* Q: ^+ D2 b! ]2 ^3 j 03.jpg
$ e% @4 s' _1 g4 u$ C( H% u. G. E  J 04.jpg , |  b; W& _# |- X. s; H" c
05.jpg
. H; d0 W8 w3 _  t 06.jpg   l; ?2 G% r: j  L" w. ^
07.jpg * N6 ~8 ~+ H" ?  t
08.jpg
* J: I  ]" @5 y) ?3 j+ X& `2 Q2 v: m8 x 09.jpg # M. M  k8 k  j6 i$ ^; e- D
10.jpg
8 E' X: z+ k( Q A.jpg - A1 [$ c) m0 x) z! U% u0 b
B.jpg
  k0 l8 N& d8 r  V" n2 _" m2 D a (2).jpg
! b+ c  Y, }) t% n. F' [ a (3).jpg 6 \, T* T# E* y# D. r# r" M
a (4).jpg
" ?8 {. L. H4 Z* W3 |$ j4 A a (5).jpg , c- o% s+ b$ ^  n. _2 h
a (6).jpg
+ i* W: [! J  S" M, J a (7).jpg
; b( `: R2 H) |! Q7 h0 K) q8 s a (8).jpg
$ V. I$ ^# h) |6 `# }$ f a (9).jpg 0 D# H% x3 W; U! ~& O( Z
a (10).jpg - [! n. \; j7 X2 u9 ^
a (11).jpg
- V$ x. q8 B+ q9 ]) w! s
0 B& g/ A# s& g. h8 n$ e& P* |1 e
回复

使用道具 举报

免责申请:①本站仅提供上传平台服务,用户可上传资料且通过审核后可获取“酷币”,每日登录也可免费获得;会员费用仅作用于平台服务费! ②本站不提供任何保证,并不承担任何法律责任,如有侵犯您的相关权益,请提供相应的资质证明,邮件联系站长删除!
在线客服(工作时间:10:00-22:00)
设计干货分享

Copyright   ©2015-2016  酷模吧  Powered by©技术支持:www.kumo8.com     ( 苏ICP备19074792号-1 )