金辉城联排别墅样板房施工图+效果图+水电物料项目文案 - CAD图库丨图纸 酷模设计吧-名师方案-设计案例-软装素材-CAD素材-SU/3D模型-设计师干货打包下载!

金辉城联排别墅样板房施工图+效果图+水电物料项目文案

[复制链接]
kuum 发表于 2020-10-15 21:04:00 | 显示全部楼层 |阅读模式
家装空间
家装分类: 别墅豪宅
风格分类: 中式风格

! q  C4 o) }6 L% S' W7 y6 a空间划分:四居室
: l" S" P2 C! F2 U) X' K结构类型:跃层
4 N/ I) D! j3 ?2 M( Z, H图纸深度:施工图* e+ C- E5 B( b" A) O3 _4 x
项目位置:重庆
( H' f" r: h4 J8 l& C9 ^' X6 Q设计风格:现代风格,新中式风格2 J" k" W3 A" L( @$ X
图纸格式:JPG,CAD2000,PPT,DOC# K$ T0 S' W+ |! k; K) }1 u5 [" P; V
包含图片:效果图,实景照片: s( V$ ]) D' t: l9 d
建筑面积:568㎡
' r* m- N& v% z1 f  K楼层数:5层+ y# t2 r, C8 h- W9 r4 H
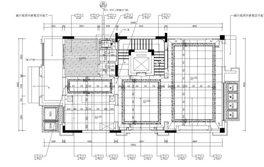
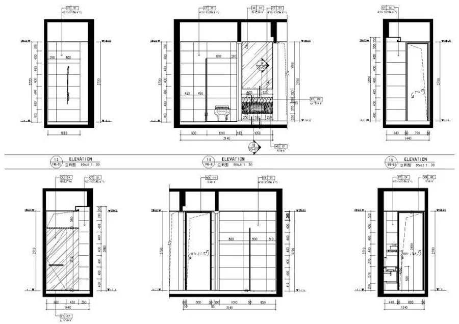
本资料为[重庆]-金辉城联排别墅样板房施工图+效果图& T* Q  o2 W+ F( E/ ]
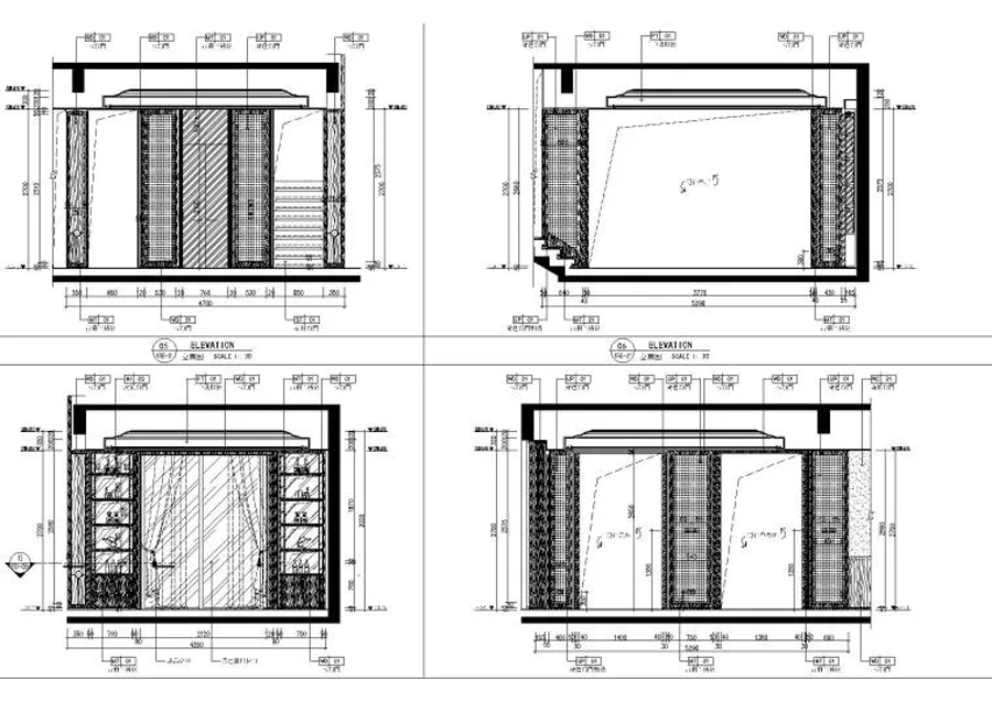
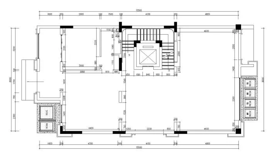
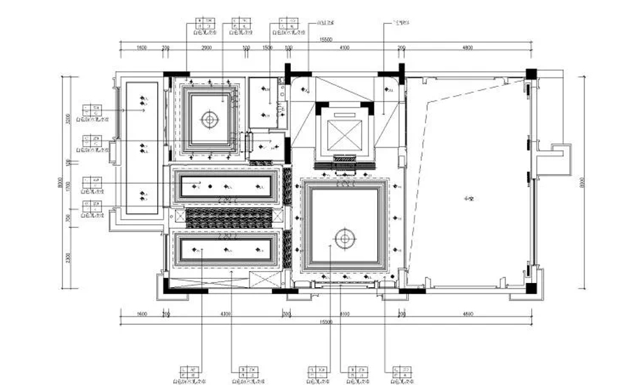
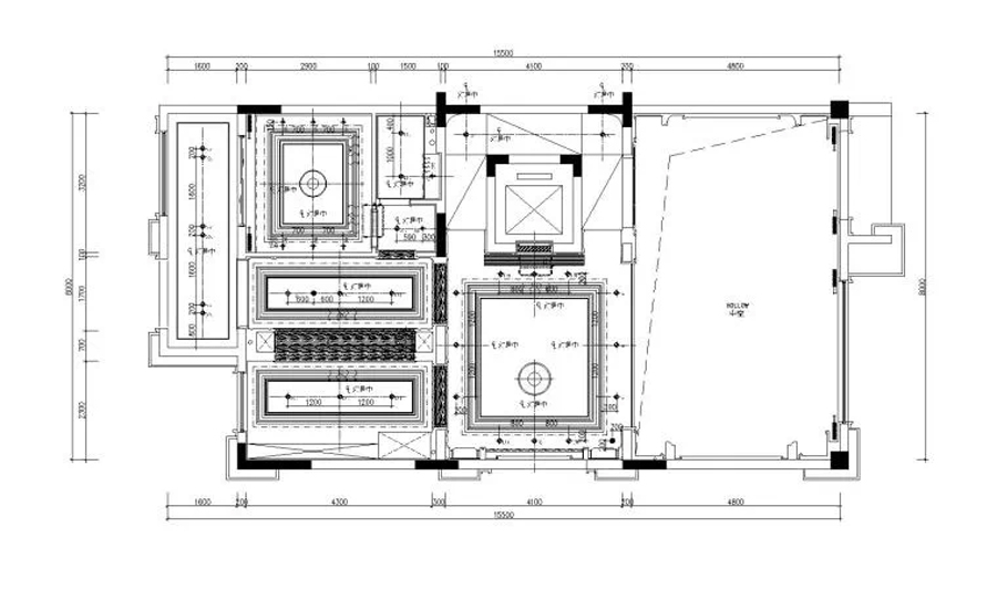
资料内容包括;CAD五层全套施工图(设计说明、目录、平面图、立面图、节点图、大样图等),内装高清效果图,水电图,物料表,报价清单,项目文案说明等

6 L7 N! T+ B. U* O 07.jpg 06.jpg
  p5 d& Z- D: ~7 K3 g2 x. i' `7 Y2 M' c
05.jpg * x6 c" M) i5 x( l8 N
04.jpg
* v; I# D  D9 w3 O% W$ P 03.jpg % Z, ?# P* X) ~% X' I" a: h
02.jpg
4 z( i9 H7 n( x- s! g# G 01.jpg
) O, J8 u6 T( L7 f 08.jpg
% \% u# u" _$ f; ^ 09.jpg
9 A8 s. U) L, y* h; O. j- C- u3 h( ~/ Q 10.jpg + ~5 k3 c# K2 V4 b& M5 ]
11.jpg
. s4 w( b" C* k! I0 K 12.jpg
: S  Y6 O/ a( m! G% E1 C8 Y! ^9 f 13.jpg   c( ]0 G$ w/ [9 o8 p
14.jpg ( l9 D$ G7 j+ i' D/ _; P& \# L$ L
15.jpg
9 G/ H4 v) Y5 V: j9 y 16.jpg
( t& \% p& v' w2 C% \7 G) Q: v
回复

使用道具 举报

免责申请:①本站仅提供上传平台服务,用户可上传资料且通过审核后可获取“酷币”,每日登录也可免费获得;会员费用仅作用于平台服务费! ②本站不提供任何保证,并不承担任何法律责任,如有侵犯您的相关权益,请提供相应的资质证明,邮件联系站长删除!
在线客服(工作时间:10:00-22:00)
设计干货分享

Copyright   ©2015-2016  酷模吧  Powered by©技术支持:www.kumo8.com     ( 苏ICP备19074792号-1 )