华润大涌西塔118㎡现代两居公寓样板间装修施工图 - CAD图库丨图纸 酷模设计吧-名师方案-设计案例-软装素材-CAD素材-SU/3D模型-设计师干货打包下载!

华润大涌西塔118㎡现代两居公寓样板间装修施工图

[复制链接]
kuum 发表于 2020-10-15 21:20:13 | 显示全部楼层 |阅读模式
家装空间
家装分类: 精品样板间
风格分类: 现代简约
请点击此处下载

请先注册会员后再进行下载

已注册会员,请先登录后下载

售价:55 酷币  |   | 收藏数量:3  
下载权限: 不限  (已享有下载权限 ) 以上或 VIP会员   [开通 VIP 会员]  [下载说明,如何下载?]

5 D; m  ?8 m6 Q) p$ V/ y5 f7 e
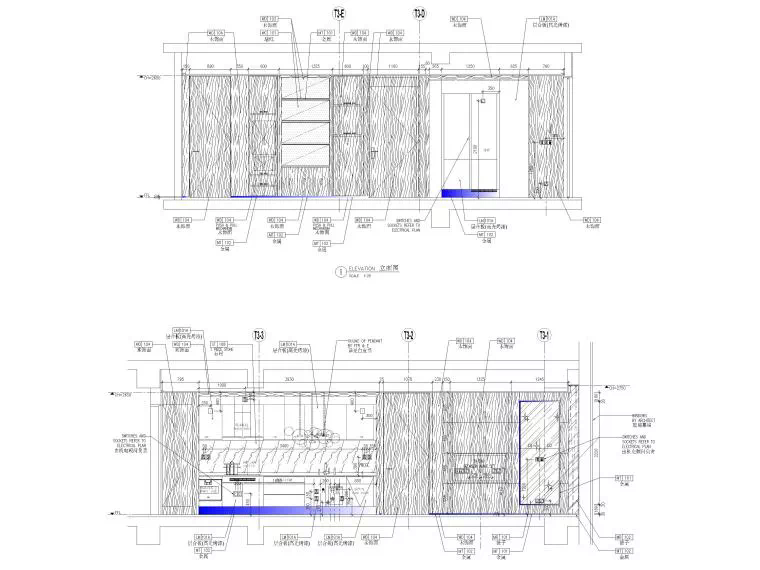
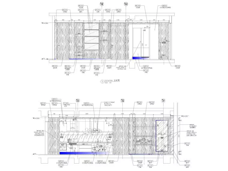
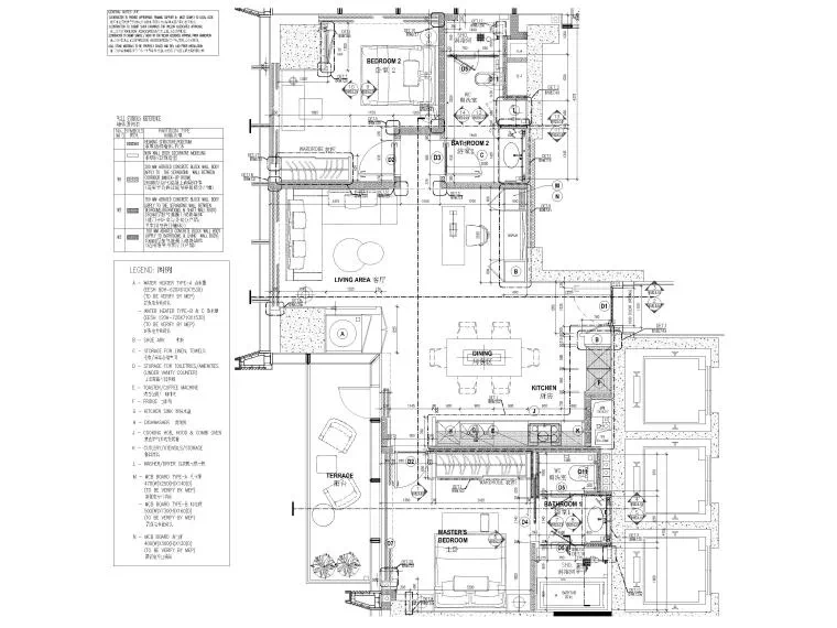
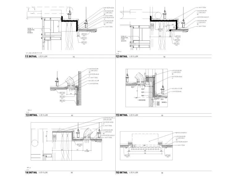
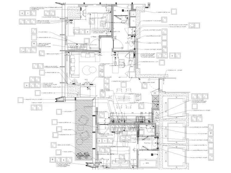
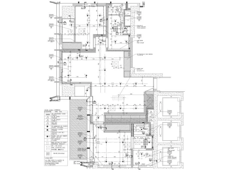
[深圳]华润大涌西塔118㎡现代两居室公寓样板间装修施工图+物料表+效果图% ]9 ^. c! N  \+ ]: `+ t  [* X+ g% Y
资料内容包含:CAD施工图(封面,图纸目录,施工图设计说明、平面图,立面图,节点大样,机电,给排水图纸等)物料表,效果图,设计方案等
  G- r( R9 q4 P- g& U4 e0 K, d空间划分:二居室
4 l+ z( V" I5 X0 u, I. y7 e! m结构类型:平层
* B: P7 j: H" j$ D+ [( ~3 \6 |$ i6 j图纸深度:施工图
1 P  _4 R/ G! ]" L项目位置:广东
3 [5 @6 F- Z( w; D( T7 L设计风格:现代风格9 v+ Y; o9 F. I# R
图纸格式:JPG,天正7,CAD2000
) h1 C0 G0 W; u: S$ w包含图片:效果图
7 j) m' {& x* W  M; ~( H: _0 Z( @建筑面积:118㎡

( b7 x) q$ Y6 g 01.png 0 Z: @. Z( m8 y
02.png
7 j3 Z) S( [4 v2 e4 T/ U 03.png
3 C/ _7 s/ M5 _+ b/ y$ x8 ? 04.png 5 w0 `( j8 I) k) _: N3 y6 W
05.png
8 K( A1 O0 `$ @) r& m 06.png - D1 b9 W8 u; u# J5 }: w0 G
07.png ' ^; w5 E5 w' N2 u
08.png ' f0 G* l, l4 t, Y! e
09.png
6 ^# z7 z- U7 R4 w2 x( B, V( @ 10.png # Y1 l" P: Q: U/ F
11.png
- Q3 w' [* c: \. i! n' M+ }9 F0 n* P 12.png
; s' [  T" O6 r5 {7 e6 P" j 13.png
2 F& r: g7 F  m, f$ [7 l 14.png 9 a# n( p! H2 _. U1 N
15.png
* X4 i; _/ H4 I9 U
& W; m2 L* O) a, \" d. V7 b: E$ r& l$ l

* `! u! X4 D/ c0 n" l
) l( ^2 l: G, t
# x' N; {/ C, L0 l' Z, Y  F7 x
回复

使用道具 举报

免责申请:①本站仅提供上传平台服务,用户可上传资料且通过审核后可获取“酷币”,每日登录也可免费获得;会员费用仅作用于平台服务费! ②本站不提供任何保证,并不承担任何法律责任,如有侵犯您的相关权益,请提供相应的资质证明,邮件联系站长删除!
在线客服(工作时间:10:00-22:00)
设计干货分享

Copyright   ©2015-2016  酷模吧  Powered by©技术支持:www.kumo8.com     ( 苏ICP备19074792号-1 )