中式风750㎡传家合院别墅丨CAD施工图+3D模型+高清实景 - CAD图库丨图纸 酷模设计吧-名师方案-设计案例-软装素材-CAD素材-SU/3D模型-设计师干货打包下载!

中式风750㎡传家合院别墅丨CAD施工图+3D模型+高清实景

[复制链接]
kuum 发表于 2020-10-28 13:30:58 | 显示全部楼层 |阅读模式
家装空间
家装分类: 别墅豪宅
风格分类: 中式风格
请点击此处下载

请先注册会员后再进行下载

已注册会员,请先登录后下载

售价:39 酷币  |   | 收藏数量:11  
下载权限: 不限  (已享有下载权限 ) 以上或 VIP会员   [开通 VIP 会员]  [下载说明,如何下载?]

7 v3 v) I. L9 d. n) t
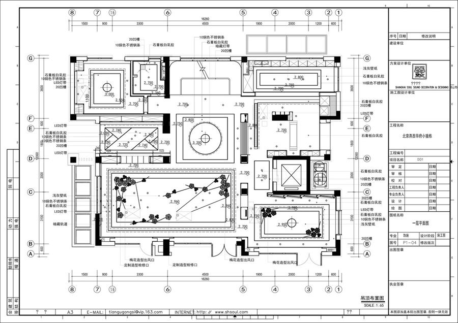
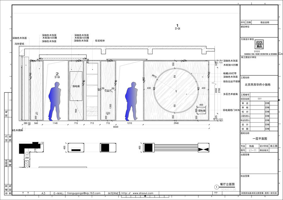
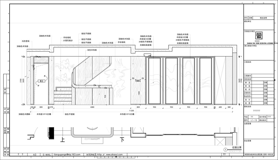
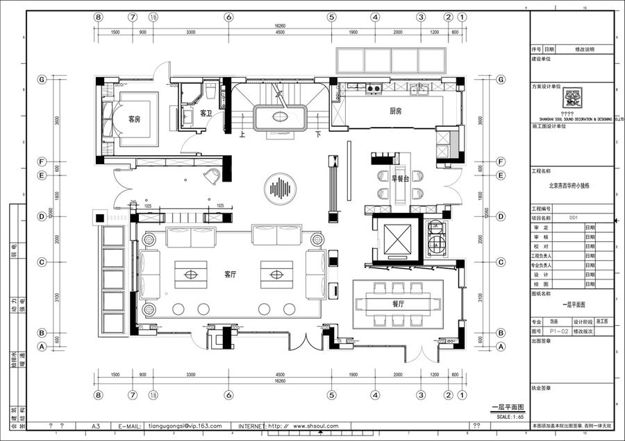
内容简介: [北京]中式风750㎡传家合院别墅3D模型+CAD施工图+实景
' N9 e3 o1 |: [" j6 z# Z资料内容包含:CAD施工图 封面,图纸目录,装饰设计说明、图例说明、材料表、总平面图、原始平面图、平面图布局图、平面配置图、立面索引图,隔墙定位图,地坪布置图,综合天花图,灯具连线图 等2 g( u4 l/ f$ R  g* m) z  h
空间划分:四居室
3 i9 |# O2 I% ~4 ]7 z结构类型:平层
9 y6 O2 ^6 p6 L% x& L图纸深度:施工图
' u- ~( h1 d# _4 ~. @项目位置:北京
* y2 G/ }" K. C  r- l设计风格:中式风格
. P6 {. m2 d+ k% g包含图片:实景照片' S$ {1 W. ^9 t/ ?+ w2 J
建筑面积:750㎡2 v2 ]$ ?2 B7 z- u# e9 w0 ?
A (1).jpg 2 I8 m) D. _, S% u0 n+ d( m! p. B
A (2).jpg
6 n0 k9 W% ~3 u" M4 A. { A (3).jpg
$ y: f' c, j* j2 x9 i$ N0 b$ h A (4).jpg
+ M0 J) \+ e0 T& R" g, x' z A (5).jpg ( Q5 t0 d: `) B6 j6 D3 w
A (6).jpg
- b  f+ [! W$ w) ^ A (7).jpg
, S& n: q8 |- Y6 E) k+ i% y$ n' S$ r A (8).jpg
' S( E" {& c; i" s A (9).jpg 4 X; K2 Z+ [6 P. ]
B (1).jpg ( _6 i. R6 a+ Y& \# \7 M8 f  `6 F
B (2).jpg
2 ]* M- i' x: a B (3).jpg : {2 m5 J' V8 E3 X; u6 v
B (4).jpg
* z/ X0 w$ x+ o. q1 J B (5).jpg
; ?/ o8 O9 `& o5 s/ q6 F B (6).jpg 0 Y  v7 B$ @* K" R
B (7).jpg 0 s7 c; v  X' \% |# F* M. I0 e
B (8).jpg
! s! J& s5 I( a/ k0 E B (9).jpg ( l% h8 I" n! \, I+ d
B (10).jpg . J0 m8 I  Z, ~( T
B (11).jpg ! L; I) \# y0 v) f1 w  j! u
B (12).jpg , U; n5 R- I3 u, x7 g
B (13).jpg / X  O/ g0 X$ B
B (14).jpg
. v1 l9 g1 R- \( y B (15).jpg
9 a# F5 e" ~' f! o& A: O B (16).jpg
) W2 B' `8 y% w; G+ N B (17).jpg ! k& b0 C5 y; }& j& U' E& Z
B (18).jpg
* d; B4 x: L% z9 i- @, ^ B (19).jpg 6 u' c' L, g0 G5 E2 v% j; Q6 j
B (20).jpg . p! V0 s- Z, k1 }
B (21).jpg
! x% r& B8 a7 E( i% V3 @) f- i& z
1 o$ K; c* I1 N/ [0 s: H- N# @7 E5 Q4 @3 K* z

% x3 w# n9 M' `$ V# d0 ?, z: G
回复

使用道具 举报

免责申请:①本站仅提供上传平台服务,用户可上传资料且通过审核后可获取“酷币”,每日登录也可免费获得;会员费用仅作用于平台服务费! ②本站不提供任何保证,并不承担任何法律责任,如有侵犯您的相关权益,请提供相应的资质证明,邮件联系站长删除!
在线客服(工作时间:10:00-22:00)
设计干货分享

Copyright   ©2015-2016  酷模吧  Powered by©技术支持:www.kumo8.com     ( 苏ICP备19074792号-1 )