北纬18°现代风900㎡别墅住宅装修施工图设计+3D模型+效果图 - CAD图库丨图纸 酷模设计吧-名师方案-设计案例-软装素材-CAD素材-SU/3D模型-设计师干货打包下载!

北纬18°现代风900㎡别墅住宅装修施工图设计+3D模型+效果图

[复制链接]
kuum 发表于 2020-10-30 16:03:12 | 显示全部楼层 |阅读模式
家装空间
家装分类: 别墅豪宅
风格分类: 现代简约
请点击此处下载

请先注册会员后再进行下载

已注册会员,请先登录后下载

售价:30 酷币  |   | 收藏数量:6  
下载权限: 不限  (已享有下载权限 ) 以上或 VIP会员   [开通 VIP 会员]  [下载说明,如何下载?]


1 i- {; h6 h9 q) Y内容简介:北纬18°现代风900㎡别墅住宅装修施工图设计+3D模型+效果图3 s/ z3 d2 @6 q2 t
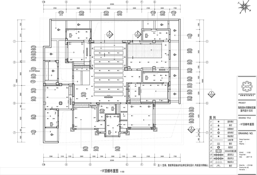
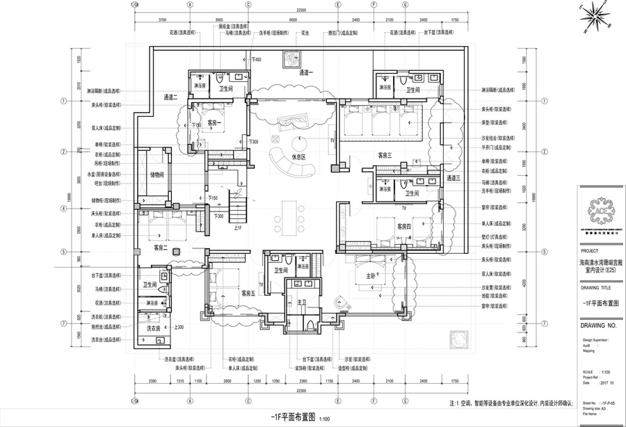
本案将客厅餐厅等“动区”放在了阳光充沛的一层,卧室则放置在了更为安静隐私的负一层。但是三亚看似阳光明媚的天气背后不可忽略的是闷热潮湿,原户型结构负一层光线暗淡、空气潮湿。如何解决这个问题是我们不得不着重去考虑的,于是我们在户型改造中,将一层的花园”下沉”到负一层,阳光和风便可自由穿行于每一间卧室,也不会打扰清静的睡梦。
7 _9 e6 s& b8 M* a+ @( r! z1 D空间划分:三居室& R8 \5 v) I5 {9 T6 A, [5 i5 x
结构类型:平层
. y3 O5 i% I0 t, m' T+ `- ?图纸深度:施工图
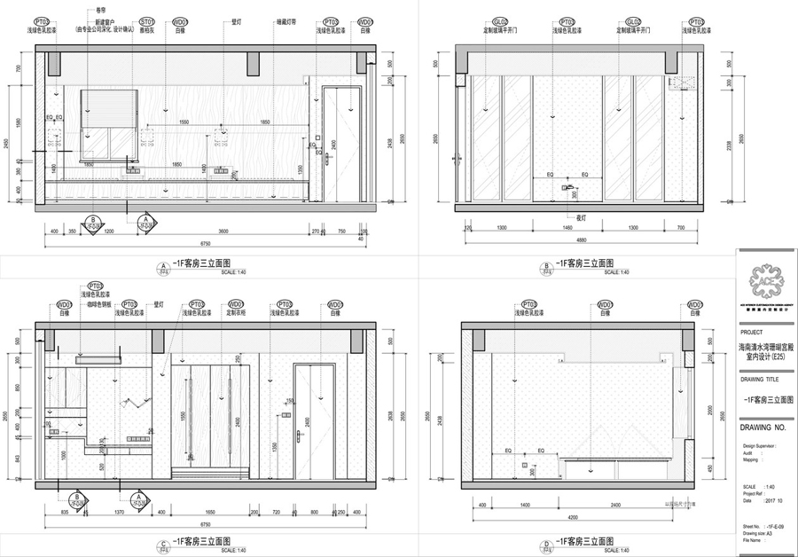
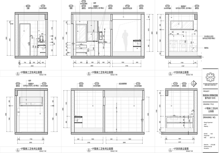
/ w! c$ J; l% F# g! f: N5 m! M设计风格:现代风格
1 (1).jpg
4 K6 Q, ]3 U7 J9 S 1 (2).jpg 5 a! O% Z' y& q( W: R/ Q+ ?6 _: G
2 e; m; ]: D' P) ~; A% u
1 (3).jpg 5 h- W, y: {2 P0 c; g5 n: g6 V
1 (4).jpg
. \4 x/ t& H. r$ V$ U! G 1 (6).jpg , N5 u, A$ s0 _2 b& V% [$ s
1 (7).jpg $ m7 r. K2 I' [0 V- E9 Y0 j( o0 K
A (14).jpg 5 m7 {6 j! M, j8 x" s
A (15).jpg
, `+ u$ e$ G" x A (16).jpg - Z$ {3 f. m  H# _9 f, q& B0 X, C
A (17).jpg
$ K1 [7 ~% s2 f( d7 ]& {. H" \% ` A (18).jpg   b3 b- x) c6 G, Z; h+ n5 s
A (19).jpg
( W- E) h/ s) M0 b3 [$ n1 P A (20).jpg : I& o! z" F! {% t$ q- V  l# x
A (21).jpg + e6 {3 B" V+ ~! u
A (22).jpg
" E6 O4 E3 z0 z! p  X5 U2 r9 i/ _) z
7 c/ t; R( @8 x  i

# i" I6 q6 Z" R; f- r: t
回复

使用道具 举报

免责申请:①本站仅提供上传平台服务,用户可上传资料且通过审核后可获取“酷币”,每日登录也可免费获得;会员费用仅作用于平台服务费! ②本站不提供任何保证,并不承担任何法律责任,如有侵犯您的相关权益,请提供相应的资质证明,邮件联系站长删除!
在线客服(工作时间:10:00-22:00)
设计干货分享

Copyright   ©2015-2016  酷模吧  Powered by©技术支持:www.kumo8.com     ( 苏ICP备19074792号-1 )