特色小镇旅游街景区销售展示厅+新中式民宿全套施工图 - CAD图库丨图纸 酷模设计吧-名师方案-设计案例-软装素材-CAD素材-SU/3D模型-设计师干货打包下载!

特色小镇旅游街景区销售展示厅+新中式民宿全套施工图

[复制链接]
kuum 发表于 2020-11-2 22:21:55 | 显示全部楼层 |阅读模式
商业展览
商业空间: 售楼中心
风格分类: 中式风格
请点击此处下载

请先注册会员后再进行下载

已注册会员,请先登录后下载

售价:39 酷币  |   | 收藏数量:3  
下载权限: 不限  (已享有下载权限 ) 以上或 VIP会员   [开通 VIP 会员]  [下载说明,如何下载?]

5 I( M; Q6 W+ f4 x
HKG-特色小镇旅游街景区销售展示厅+新中式民宿客栈全套施工图$ E: Z* g* d4 y5 G$ B
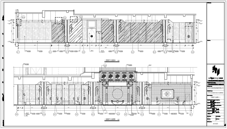
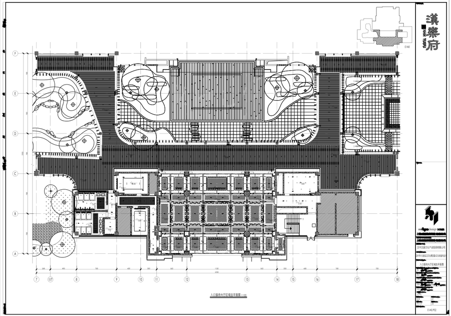
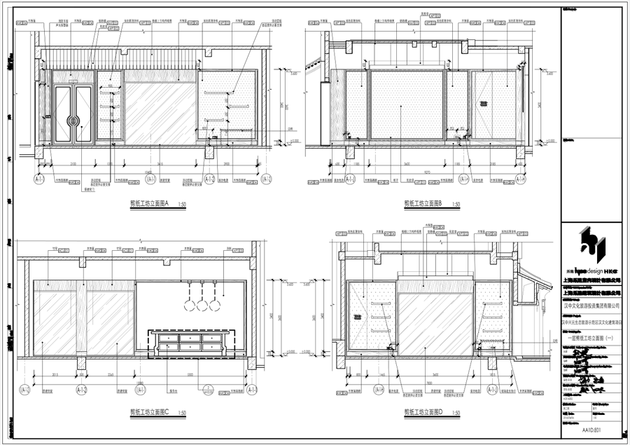
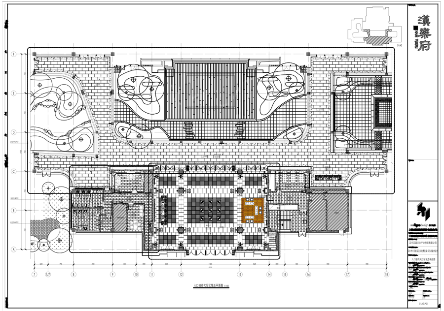
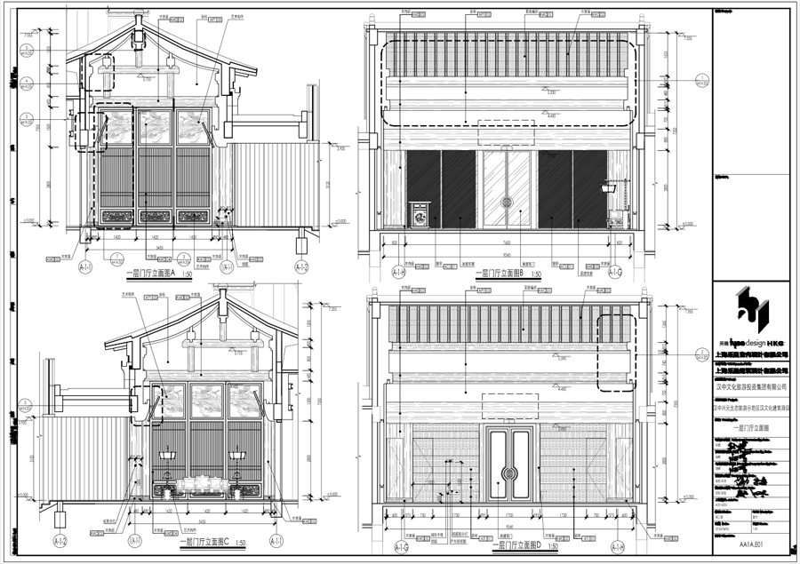
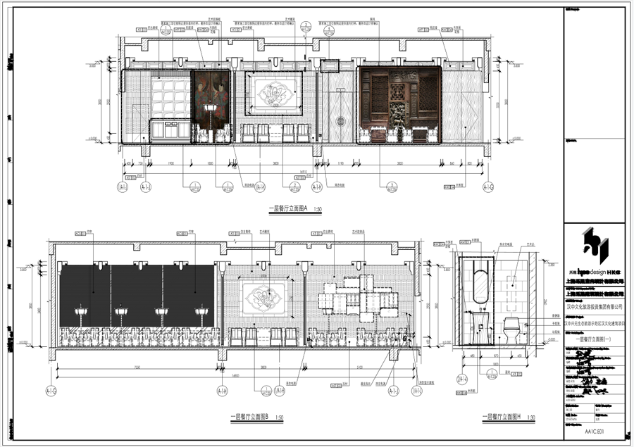
包含:全套施工图CAD+PDF:A区门厅、展厅、餐厅、剪纸工坊、客栈入口、后勤、茶室、走道、客房、门表施工图(节点大样图、立面图、门表门节点图、平面图、总图、通用节点);B区客栈大堂施工图、咖啡厅施工图、客栈客房施工图;机电施工图;建筑施工图(电气施工图、给排水施工图、建筑施工图、建筑图、结构施工图、暖通施工图、弱电施工图)等。# [$ T. ~  {  {# I$ o! g8 a" q
空间划分:成套商业) V* R! v5 w, {/ h! s( d
空间类型:店铺,其他
& I3 B5 i  _" x' v图纸深度:施工图
( Z! ~7 `5 J( v! T设计风格:新中式风格$ R' X: v8 V+ B  z) t
图纸格式:CAD2000,PDF# Y$ z% S! r1 N, D9 m4 h0 ]
图纸张数:178张# W6 W8 e& F0 f1 B9 M
01.png 02.png
  i( Y9 P, g; B7 U 03.png 9 K; G" F3 Q: R3 {$ F3 b2 W
04.png 7 k- p, ]' W5 v+ R1 h
05.png 7 s  O- B3 N: @  r0 W0 o
06.png " j' N3 S5 B" L, ~6 {- C7 j' ?! b
07.png 1 C9 u# L  y7 c; O3 F% o- V
08.png 3 j$ r+ i) o2 Q, v
09.png
, \! S* N# O1 B2 C' s( q6 x 10.png
( `2 e: U0 L# g: c
, E/ y7 u; t' X4 g. ?4 u" t% U  t4 H
* ]3 X* d; c- C( r/ t5 S; k
1 y( Y) ]' I% r. u# T
回复

使用道具 举报

免责申请:①本站仅提供上传平台服务,用户可上传资料且通过审核后可获取“酷币”,每日登录也可免费获得;会员费用仅作用于平台服务费! ②本站不提供任何保证,并不承担任何法律责任,如有侵犯您的相关权益,请提供相应的资质证明,邮件联系站长删除!
在线客服(工作时间:10:00-22:00)
设计干货分享

Copyright   ©2015-2016  酷模吧  Powered by©技术支持:www.kumo8.com     ( 苏ICP备19074792号-1 )