珠海沃尔玛325㎡阿迪达斯服饰专卖店室内装修施工图+效果图 - CAD图库丨图纸 酷模设计吧-名师方案-设计案例-软装素材-CAD素材-SU/3D模型-设计师干货打包下载!

珠海沃尔玛325㎡阿迪达斯服饰专卖店室内装修施工图+效果图

[复制链接]
kuum 发表于 2020-11-2 22:23:06 | 显示全部楼层 |阅读模式
商业展览
商业空间: 专卖店
风格分类: 现代简约
请点击此处下载

请先注册会员后再进行下载

已注册会员,请先登录后下载

售价:35 酷币  |   | 收藏数量:5  
下载权限: 不限  (已享有下载权限 ) 以上或 VIP会员   [开通 VIP 会员]  [下载说明,如何下载?]

' R* }; M2 C! L  Z. ]4 v! e
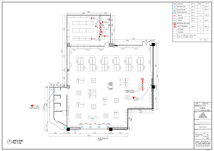
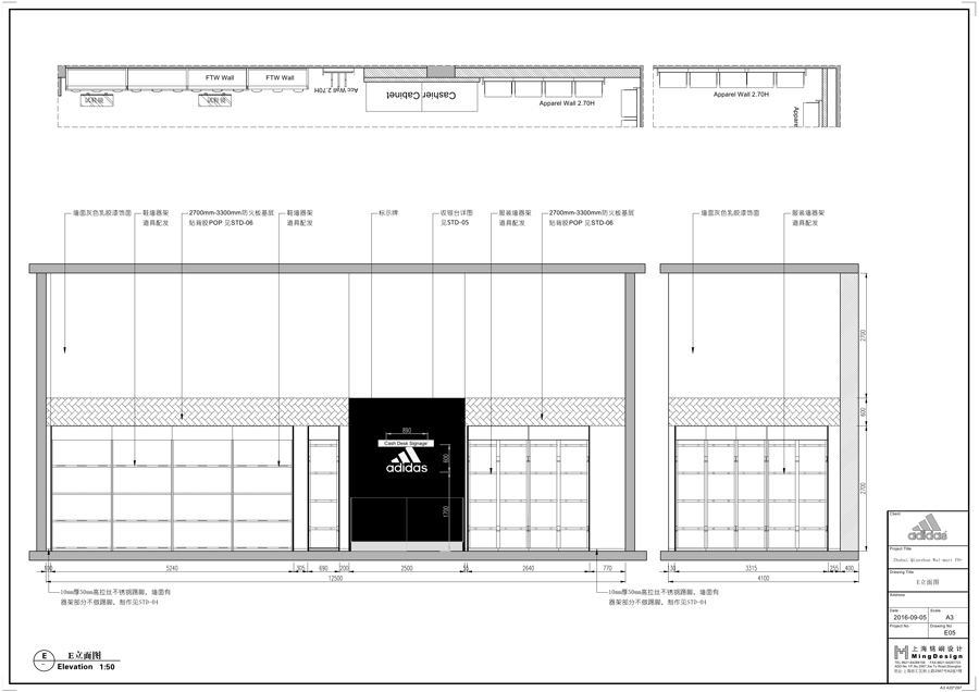
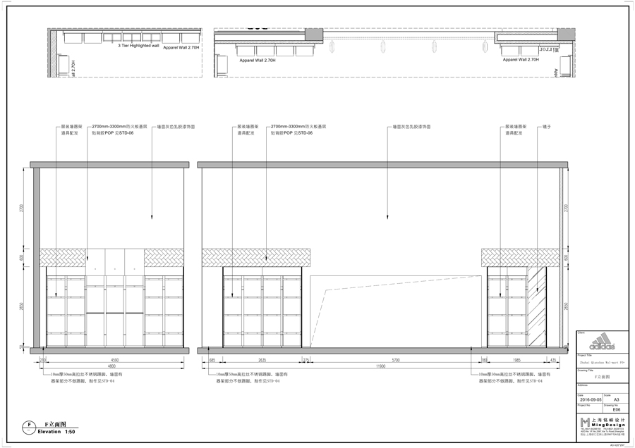
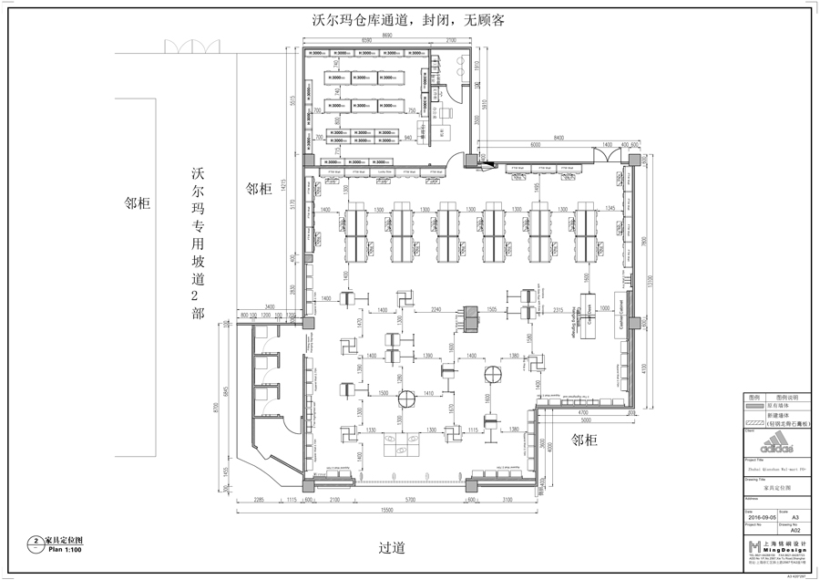
[广东]珠海沃尔玛325㎡阿迪达斯服饰专卖店室内装修施工图+效果图0 {+ D" z& l0 ^* V
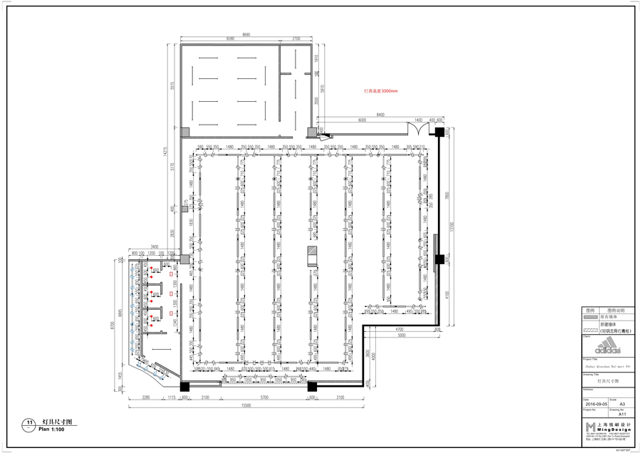
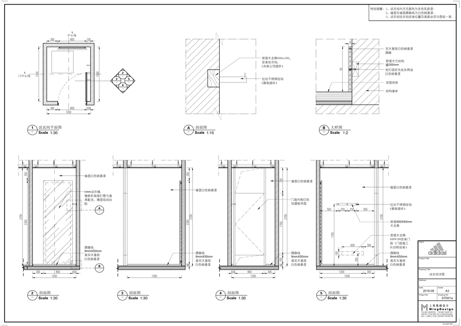
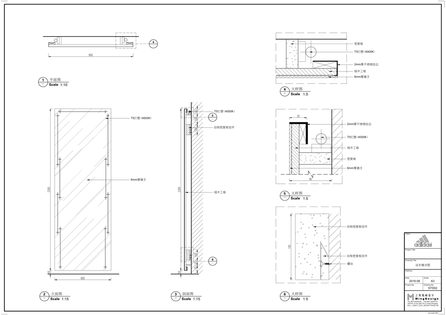
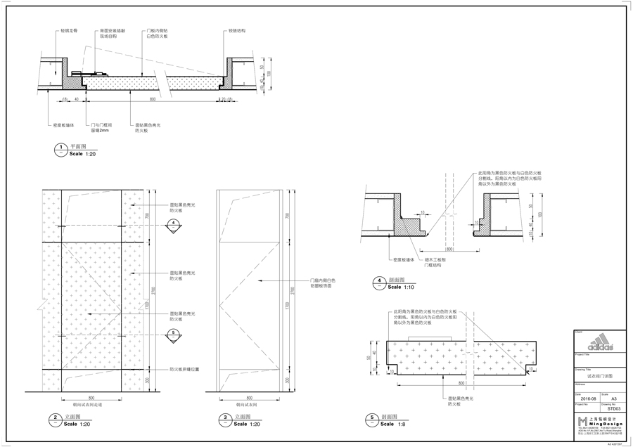
资料内容包含:CAD施工图(图纸目录,施工图设计说明、平面图,立面图,节点大样,机电,电气图纸等)PDF版图纸,物料表,效果图等
9 I* u$ O6 t# u& w: u4 S空间划分:成套商业* B/ }" m* q+ _- _* M* L
空间类型:专卖店,店铺
7 n) X5 N5 y5 s8 R: `图纸深度:施工图- Z- d0 [* L& ]/ t
项目位置:广东
3 K7 b4 }: o- y% ?) P4 T# v设计风格:现代风格
  |* K  M+ F$ z" _5 z" w包含图片:效果图, M# i3 V9 {2 S7 z4 p" m
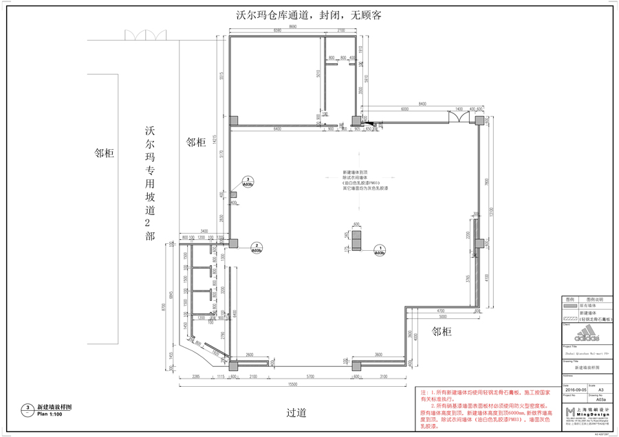
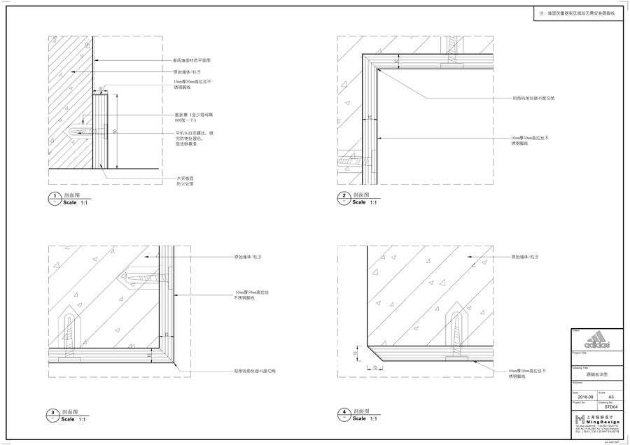
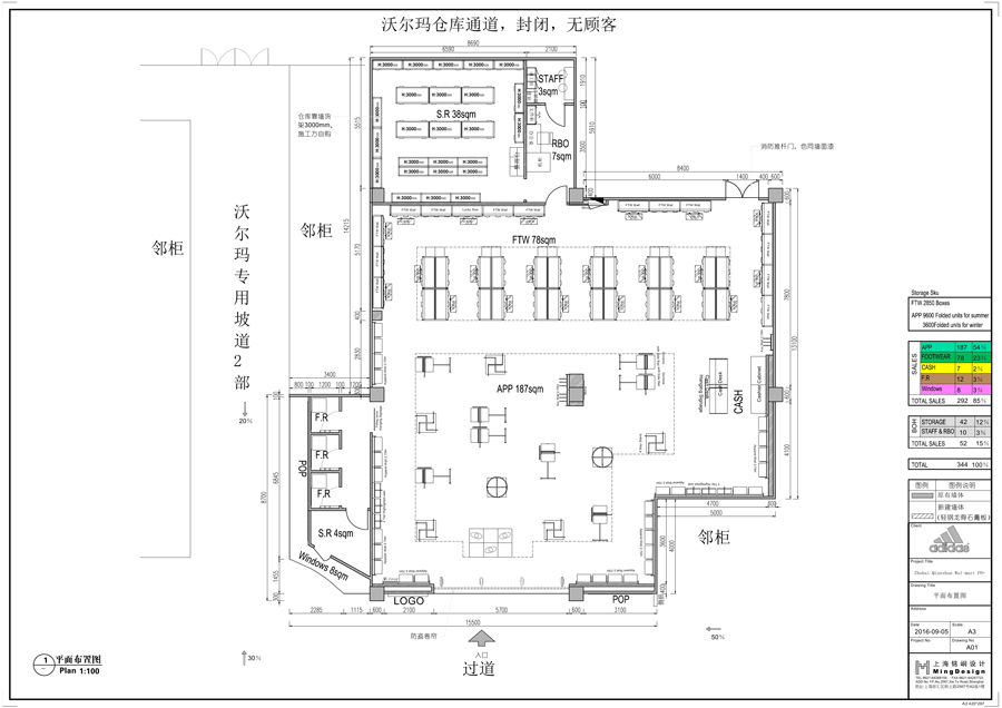
建筑面积:325㎡ 16.jpg . ]& }1 S# h- G% S
17.jpg
$ g- a# p! m) l2 A' u* L 18.jpg
$ b; n3 X1 V1 T6 v 19.jpg
2 f+ [8 j: i% X# b 20.jpg
: _) @3 o' C1 w- Q5 \7 C: X0 I 23.jpg ! b1 Q! m! D' e6 \$ u+ J% J
25.jpg 8 Z* ?: u" T, `) ^; s# ~" d
28.jpg : p4 i( s" m+ Q5 v
44.jpg 6 c, l8 A6 t7 F% z
45.jpg
3 ]; o7 J$ s5 N) B' k 46.jpg : n" I& o* D: y' i
50.jpg - w4 K8 W, {+ N7 F! |' j
51.jpg 2 J' z. e; u  [, o% V
52.jpg ! \8 v9 f- b$ F8 p3 c
53.jpg
5 R0 l9 e1 j! z% m# X& l& d- a 1 (4).jpg 8 v$ i# {5 m' s6 y& c( e
1 (2).jpg $ u% H. R5 P; T0 v' l; K6 a# g; M
1 (3).jpg , B5 m  M* f4 Q0 I! y
回复

使用道具 举报

免责申请:①本站仅提供上传平台服务,用户可上传资料且通过审核后可获取“酷币”,每日登录也可免费获得;会员费用仅作用于平台服务费! ②本站不提供任何保证,并不承担任何法律责任,如有侵犯您的相关权益,请提供相应的资质证明,邮件联系站长删除!
在线客服(工作时间:10:00-22:00)
设计干货分享

Copyright   ©2015-2016  酷模吧  Powered by©技术支持:www.kumo8.com     ( 苏ICP备19074792号-1 )