成都中德麓府别墅四合院+样板间+售楼处丨CAD平面+设计方案+效果图+3D模型 - CAD图库丨图纸 酷模设计吧-名师方案-设计案例-软装素材-CAD素材-SU/3D模型-设计师干货打包下载!

成都中德麓府别墅四合院+样板间+售楼处丨CAD平面+设计方案+效果图+3D模型

[复制链接]
kuum 发表于 2020-11-2 22:58:07 | 显示全部楼层 |阅读模式
商业展览
商业空间: 售楼中心
风格分类: 中式风格
请点击此处下载

请先注册会员后再进行下载

已注册会员,请先登录后下载

售价:66 酷币  |   | 收藏数量:6  
下载权限: 不限  (已享有下载权限 ) 以上或 VIP会员   [开通 VIP 会员]  [下载说明,如何下载?]


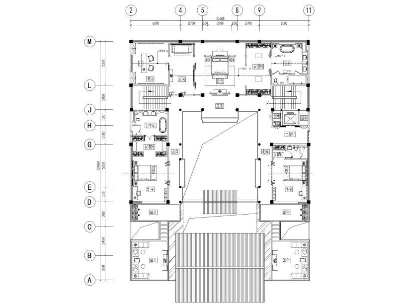
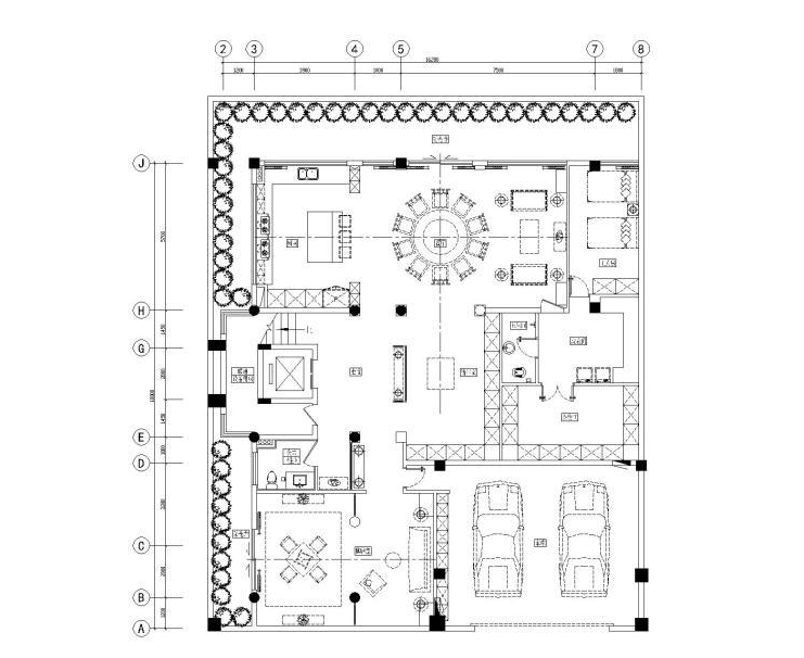
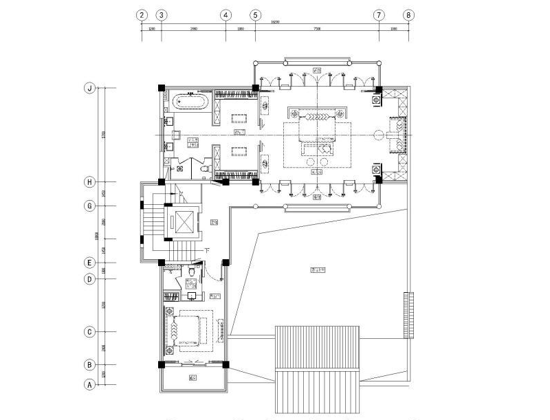
4 L7 U: F! @/ U/ f+ u) ?) a; D+ A' P[四川]柏舍设计-成都中德麓府别墅四合院+样板间+售楼处丨CAD平面+设计方案+效果图+MAX模型,资料内容包含:售楼部设计方案、售楼部效果图7张、别墅合院设计方案、别墅合院CAD平面图6张、别墅合院效果图21张、别墅合院模型、高层样板间概念方案、高层样板间深化方案、高层样板间效果图8张等
  z& i* K$ Y* i- \, A图纸深度:方案(初设图),施工图2 L0 x9 }. W: H) l1 {! H
项目位置:四川8 _0 e9 K' J( @, O
设计风格:现代风格
% m+ [" `5 q$ X  A. r  a. T* A: M图纸格式:JPG,CAD2000,PDF
01.png
7 f) i: S( t+ {& X% i
02.png

5 q/ h2 p# S4 E) _- V5 p3 h+ t
03.png
! y+ O9 Y. J  n/ q
04.png
6 `  x9 K$ v, R3 Z! ]
05.png

! N4 r! Y8 b+ p+ t% Y1 c' J) p
06.png

7 H9 H; p# j0 k% o" u
07.png
4 {& E) W% u+ a( ]  ?
08.png

! q# V  F2 _7 _- K3 Z0 x+ r0 i- O- H& d8 _1 z, ~( Q( n) K3 e" h7 o
回复

使用道具 举报

免责申请:①本站仅提供上传平台服务,用户可上传资料且通过审核后可获取“酷币”,每日登录也可免费获得;会员费用仅作用于平台服务费! ②本站不提供任何保证,并不承担任何法律责任,如有侵犯您的相关权益,请提供相应的资质证明,邮件联系站长删除!
在线客服(工作时间:10:00-22:00)
设计干货分享

Copyright   ©2015-2016  酷模吧  Powered by©技术支持:www.kumo8.com     ( 苏ICP备19074792号-1 )