7套精品星级知名酒店施工图资料 - CAD图库丨图纸 酷模设计吧-名师方案-设计案例-软装素材-CAD素材-SU/3D模型-设计师干货打包下载!

7套精品星级知名酒店施工图资料

[复制链接]
kuum 发表于 2020-11-5 12:39:05 | 显示全部楼层 |阅读模式
酒店餐饮
酒店餐厅: 商务酒店
风格分类: 现代简约
请点击此处下载

请先注册会员后再进行下载

已注册会员,请先登录后下载

售价:45 酷币  |   | 收藏数量:14  
下载权限: 不限  (已享有下载权限 ) 以上或 VIP会员   [开通 VIP 会员]  [下载说明,如何下载?]


. h7 w) M* T) y) |$ w7 }. Y+ S7套精品星级知名酒店施工图资料 2.5G8 c: {0 o. e- w5 {& ~. b2 p0 P% D4 q8 \
星级标准:四星,五星: J  w' y, G/ C+ O
酒店类型:度假酒店,商务酒店,特色酒店1 u/ @5 h4 R" `; v# E5 N
空间划分:成套酒店, R2 Q9 f" e) a4 R0 ~0 F
图纸深度:施工图
2 Z3 H& O. _" a5 z8 b5 L内容包含:6 o0 x8 R7 J  l4 |$ J6 k+ c# S; O
1.喜来登酒店2019全新客房样板间设计标准$ ?. g/ N6 T. ]7 K. p
2.[湖南]益阳火车站麗枫酒店装饰设计项目全套施工图4 l3 t4 d8 H4 e, U* L
3.[深圳]京基100瑞吉五星级酒店室内装饰设计施工图+效果图
) @/ Y$ n' [0 l( h. ?0 @4.麗枫酒店全套室内装修工程2.0标准图集施工图
& L2 q8 X# C! o7 {5 p7 a* R& b5.[上海]万和铂尔曼五星级酒店室内装饰设计施工图+效果图/ z! P8 k, c8 {5 C0 V
6.[四川]成都维尔酒店室内设计全套施工图+效果图
6 F3 m0 I, a4 ?3 V) v5 v) x+ J# s7.[北京]王府井Stey公寓式酒店丨效果图+PPT设计方案+全套施工图CAD+机电+物料+摄影+实景丨943M4 f/ a3 {5 s2 Q/ y# Y
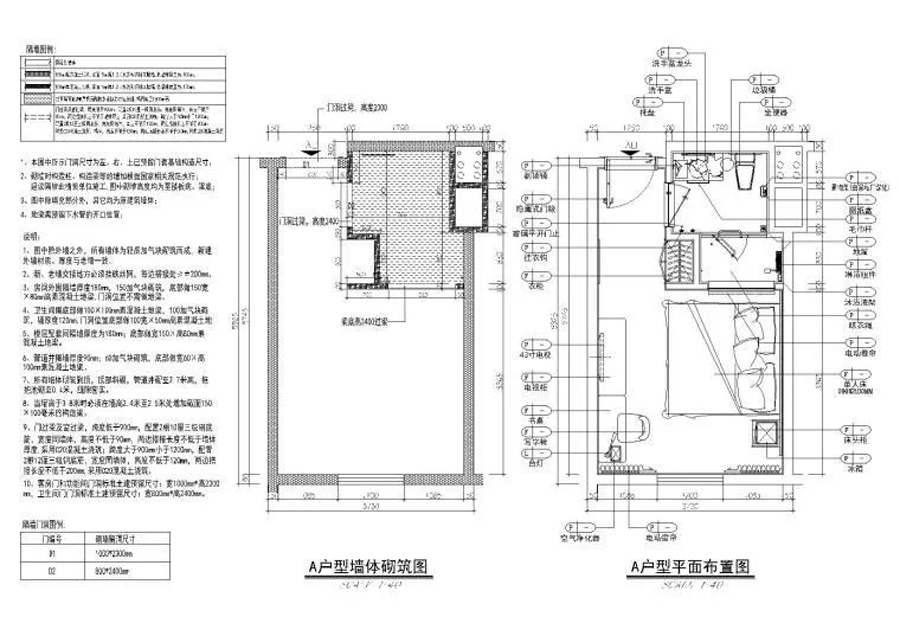
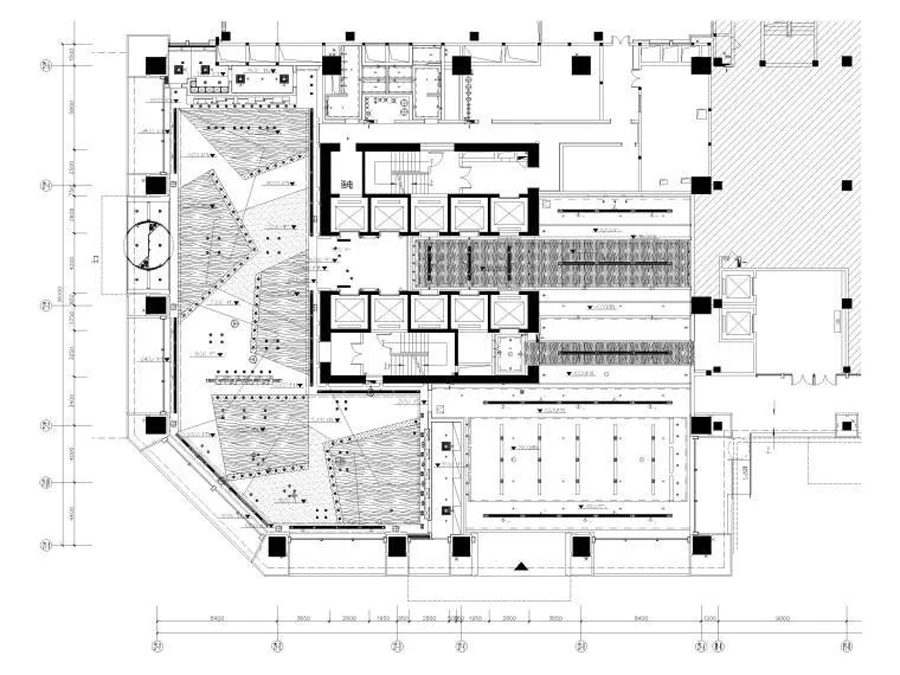
01.jpg
$ m6 e& b4 _, A0 g* s0 w$ N5 ` 02.jpg * X# G8 w: N% G7 w* k9 W2 v4 w
03.jpg ' W& P4 G! f/ z8 i( h
04.jpg ; M7 ]0 v( j1 j% E) s
05.jpg ) @9 K/ O! W( O5 x& \& K$ E
06.jpg . M9 ^5 B, E( K" z+ H+ j' i" T
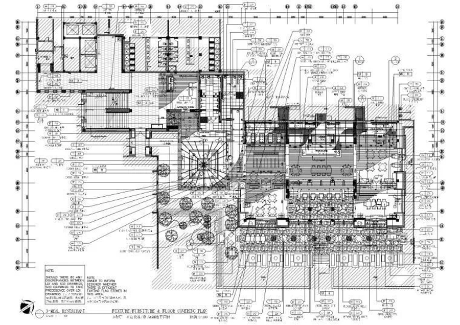
07.jpg . U  d# V2 n* U/ y: _: W0 @3 p
08.jpg - s' n, [/ Q! N9 \9 [
09.jpg ) _5 P# N+ g( o. K1 o8 N; w7 V
10.jpg
5 g8 e9 U  a: R 11.jpg 5 |( @' f( z' x6 g
12.jpg 4 R5 |& N% I( }" p* Z4 a
9 }6 k% H- J5 ~" s  O7 f) d
回复

使用道具 举报

免责申请:①本站仅提供上传平台服务,用户可上传资料且通过审核后可获取“酷币”,每日登录也可免费获得;会员费用仅作用于平台服务费! ②本站不提供任何保证,并不承担任何法律责任,如有侵犯您的相关权益,请提供相应的资质证明,邮件联系站长删除!
在线客服(工作时间:10:00-22:00)
设计干货分享

Copyright   ©2015-2016  酷模吧  Powered by©技术支持:www.kumo8.com     ( 苏ICP备19074792号-1 )