10套KTV 影院 娱乐城装饰设计CAD施工图+效果图 - CAD图库丨图纸 酷模设计吧-名师方案-设计案例-软装素材-CAD素材-SU/3D模型-设计师干货打包下载!

10套KTV 影院 娱乐城装饰设计CAD施工图+效果图

[复制链接]
kuum 发表于 2020-11-5 12:41:04 | 显示全部楼层 |阅读模式
休闲娱乐
休闲娱乐: KTV
行业: 现代简约
请点击此处下载

请先注册会员后再进行下载

已注册会员,请先登录后下载

售价:45 酷币  |   | 收藏数量:22  
下载权限: 不限  (已享有下载权限 ) 以上或 VIP会员   [开通 VIP 会员]  [下载说明,如何下载?]


3 C4 z+ V, I6 G" ]3 \( F10套KTV,影院,娱乐城图纸资料 1.44G1 ?6 d- I' B* m3 Y2 J

3 d  J+ M6 |% U2 e) Y* Y0 L1 ?
% X& e# }+ z5 @
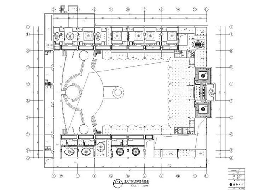
空间划分:成套娱乐空间
( r) D$ R  s, `# f( z9 l空间类型:娱乐城,KTV,电影院- L3 ^# a+ [5 }& F; s
图纸深度:施工图,竣工图, u4 p. B1 ]- j4 K+ @+ i, e
图纸格式:JPG,天正7,CAD2000,PDF5 T" G( ?) t* F+ f7 f8 g. ]# y" [- Z

2 g( q# ?1 e5 ]  j
. {9 v+ a: C7 {) k' Y
内容包含:
( w7 d1 K: E5 P! o/ G+ M6 ]2 OKTV施工图2 @1 K1 H0 i' `0 A
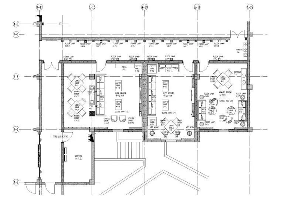
1.[安徽]黄山悦榕庄度假酒店KTV娱乐空间装饰施工图
5 Z% v& [5 b" O' Y8 }' w: Z2.[苏州]唛秀时尚KTV室内装饰设计施工图+效果图
4 s' A+ |4 T" l0 Z3 }3.[郑州]绿地峰会天下群楼KTV设计施工图+效果图2 b* Y/ ~; G% n% e2 m+ ?
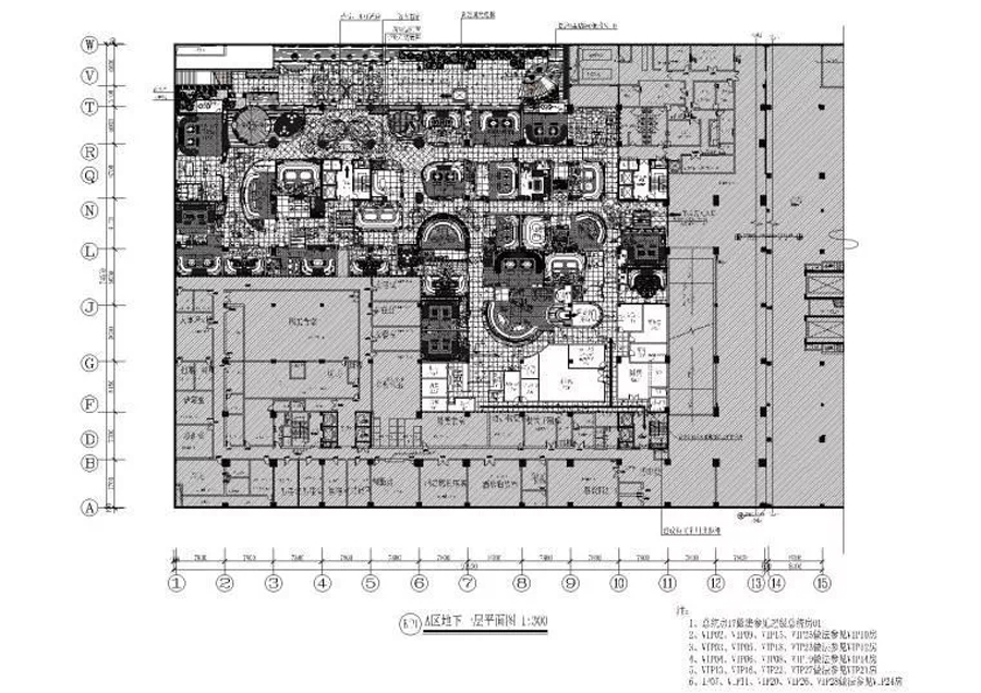
娱乐场所施工图
7 ?8 o+ ^: ^0 U: ?/ D/ C3 k1.[重庆]申基索菲特酒店地下夜总会装饰施工图+效果图
7 m  j3 b6 i7 ]9 P1 @2.[安徽]合肥琴港演艺不夜城CAD施工图+效果图+报价单+采购单
2 p9 A, p: _5 V3.[深圳]万象天地星际传奇动漫电玩城丨660㎡丨装饰施工图CAD+完工实景. n" O: g0 z! l, R
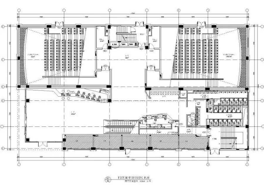
影院剧院施工图+ k+ I. m; U% x! J
1.[广州]珠海英皇UA影城室内装修设计施工图+机电图+实景照片
: A% T1 r+ q$ M' ~5 m2.[南昌]BONA博纳国际影城南昌铜锣湾店室内施工图+设计方案: n6 z" [& J) l1 p& Y" w/ x5 U+ J
3.[新疆]乌鲁木齐美亚巨幕影城室内装饰设计施工图+实景拍摄
' F! E! S) E) x: K' g4 D4.[山东]青岛大剧院室内装饰设计施工图+PDF文件
/ i7 k+ M1 b) ?- G! N, G5 m. V 01.jpg " }6 J" p! j1 d) p% B! ?  ?
02.jpg
0 |1 k/ [3 C" F6 q; R 03.jpg
$ A7 P' F2 ?) l; {5 x: R/ [2 n 04.jpg   X* d7 O6 g  l% r
05.jpg 3 e% a0 Z8 W& g1 d/ g3 Q
06.jpg
, |. q1 @7 K: N* M& h+ P 07.jpg
% G6 }1 D" Y. | 08.jpg
' X# H+ t- \+ \8 P: e! a 09.jpg & k# J1 P' Q9 o0 ?
10.jpg
6 z1 z5 [  ~+ [4 \( c" c 11.jpg & A4 t! Z  {- T& `# R1 ]
' e, ?4 ?/ y0 V
回复

使用道具 举报

免责申请:①本站仅提供上传平台服务,用户可上传资料且通过审核后可获取“酷币”,每日登录也可免费获得;会员费用仅作用于平台服务费! ②本站不提供任何保证,并不承担任何法律责任,如有侵犯您的相关权益,请提供相应的资质证明,邮件联系站长删除!
在线客服(工作时间:10:00-22:00)
设计干货分享

Copyright   ©2015-2016  酷模吧  Powered by©技术支持:www.kumo8.com     ( 苏ICP备19074792号-1 )