10套精选办公空间设计方案 施工图+效果图+实景图 - CAD图库丨图纸 酷模设计吧-名师方案-设计案例-软装素材-CAD素材-SU/3D模型-设计师干货打包下载!

10套精选办公空间设计方案 施工图+效果图+实景图

[复制链接]
kuum 发表于 2020-11-5 12:42:31 | 显示全部楼层 |阅读模式
办公会议
办公空间: 商业办公
风格分类: 现代简约
请点击此处下载

请先注册会员后再进行下载

已注册会员,请先登录后下载

售价:45 酷币  |   | 收藏数量:24  
下载权限: 不限  (已享有下载权限 ) 以上或 VIP会员   [开通 VIP 会员]  [下载说明,如何下载?]

8 @& I7 o6 b" m8 u% u- c
本资料为10套精选办公空间设计方案,资料主要包括施工图,效果图,实景图5 E$ G* J. N0 r$ ^" t
空间划分:成套办公空间
) |7 Q; H' z% v' y( T8 E, ]+ i办公类型:办公楼,写字楼9 `9 O4 h. h+ F) e. j- o; u$ U( u
图纸深度:施工图,竣工图: a6 x# m: ?2 e. x( Z- w+ }1 N* X
设计风格:欧陆风格,中式风格,现代风格/ Q# L0 P' O$ h, K( H
图纸格式:JPG,CAD2000,PDF9 ^- h& ^# N2 w' v3 o+ h! e
包含图片:效果图,实景照片, }6 Y' d7 `9 o2 q2 g
10套精选办公空间设计方案500M
4 b; i( x9 w: o+ b2 q5 I4 O1、鸿荣源壹方中心A塔办公大堂丨效果图+施工图
/ V2 w4 d7 E5 [6 o. E2、[广东]融通华都办公室空间室内设计竣工图" c( y& W, K+ x
3、励业公社共享办公空间_效果+施工图+机电图% U2 v& B% o; n  d& e* p% d
4、武汉矿业集团有限公司办公空间施工图
1 N: D. w& K6 d6 K& G0 Q- y' R9 c5、[江苏]锦光生命书房办公空间施工图+实景图+ C) B* j4 {0 `' }, y  D8 z
6、[广东]BSD-小米深圳研发中心办公室装修CAD施工图+效果图15张( v8 T  g/ w+ g7 }1 V  u4 R
7、[深圳]海松大厦创域设计办公室施工图+实景8 m" @: i& m4 z1 P+ q
8、四川泽嘉建筑公司办公楼装修施工图+效果图
5 H) e" p9 H  q! ~& L9、上海创客空间办公室(效果图+施工图)
0 a, _+ f1 ]- U* t3 z10、[上海]广发证券上海国金16楼办公室施工图
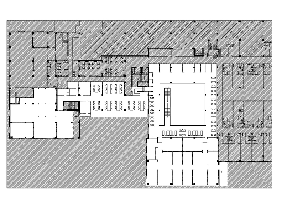
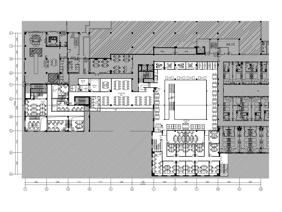
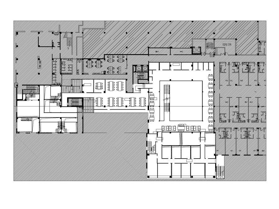
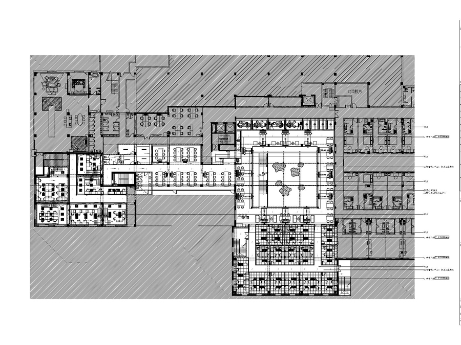
) d+ U  @) ?2 z 01平面设计图.jpg
+ F- @1 t+ `  s3 D3 G' w% a: X 02综合天花图.jpg - j5 ^7 U! v9 l% O
03地坪设计图.jpg # d3 o# t* B; x4 T% z9 J% I" {
04墙体图.jpg
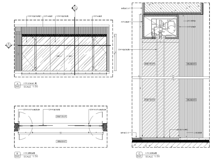
) N' m/ M4 Z5 l% f 05前台区立面图.jpg
( X3 E, H2 k8 g; n9 d  C! M6 [ 06中庭区立面图.jpg / u$ Q& U' F1 \, ]6 |/ L5 L6 [6 \
07活动空间立面图.jpg
% B# o0 w0 U6 |7 `  K, z 08玻璃房立面图.jpg
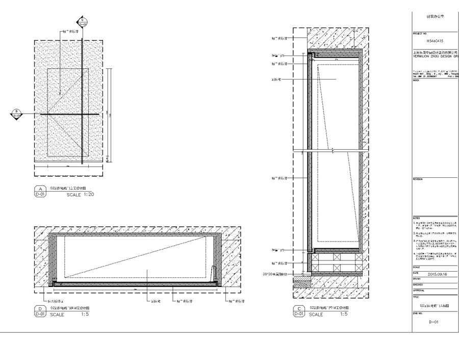
( Z8 ~( g% {1 H 09消防消防栓暗门节点.jpg
' v! [% A$ K5 F! c& D) N) A- T' b 10入口门大样图.jpg 2 U- q/ A: m* Y4 ]3 E
11中庭下沉区卡座详图.jpg $ I; G; n' w: a: V! K: U
12办公区2.jpg
& s5 y! P& ?% c1 q, d% F4 Z 13办公区1.jpg ) w" X; A+ C. w$ \
14前台休息区1.jpg
2 V4 e& K5 m9 n, T1 M 15前台休息区2.jpg
6 r: z- C5 _. e5 l 16中庭2.jpg
- }# |' A+ |! K: U' U3 |6 O/ b" l
回复

使用道具 举报

免责申请:①本站仅提供上传平台服务,用户可上传资料且通过审核后可获取“酷币”,每日登录也可免费获得;会员费用仅作用于平台服务费! ②本站不提供任何保证,并不承担任何法律责任,如有侵犯您的相关权益,请提供相应的资质证明,邮件联系站长删除!
在线客服(工作时间:10:00-22:00)
设计干货分享

Copyright   ©2015-2016  酷模吧  Powered by©技术支持:www.kumo8.com     ( 苏ICP备19074792号-1 )