矩阵纵横-壹方中心鸿荣源集团总部办公楼42~46层丨方案+施工图+软装方案 - CAD图库丨图纸 酷模设计吧-名师方案-设计案例-软装素材-CAD素材-SU/3D模型-设计师干货打包下载!

矩阵纵横-壹方中心鸿荣源集团总部办公楼42~46层丨方案+施工图+软装方案

[复制链接]
kuum 发表于 2020-11-6 13:33:01 | 显示全部楼层 |阅读模式
办公会议
办公空间: 商业办公
风格分类: 现代简约
请点击此处下载

请先注册会员后再进行下载

已注册会员,请先登录后下载

售价:35 酷币  |   | 收藏数量:16  
下载权限: 不限  (已享有下载权限 ) 以上或 VIP会员   [开通 VIP 会员]  [下载说明,如何下载?]

9 n) }/ P' E8 q
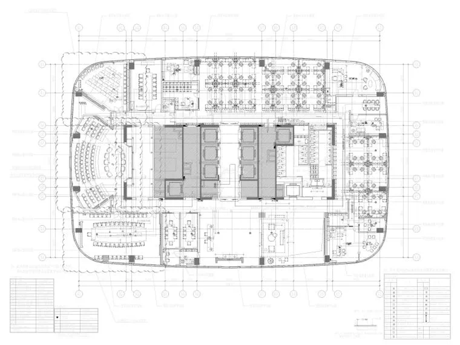
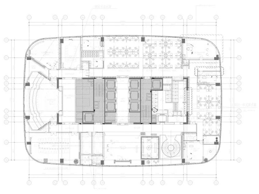
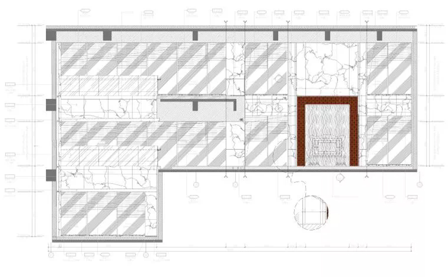
[深圳]壹方中心鸿荣源集团总部办公楼42~46层丨PPT效果图方案+施工图+软装方案+物料表丨896M
; H1 b. A/ Z9 \( m资料内容包含:办公楼42~46层CAD施工图(封面,图纸目录,施工图设计说明,打印线性、平面图,立面图,节点大样,电气,给排水,空调等图纸)效果图,软装方案,物料表,PPT方案等+ b& J4 o5 t5 `  y
空间划分:成套办公空间
. x5 O/ ]- V0 g9 X- o办公类型:办公楼6 o( @6 h) t+ d" z, X
图纸深度:施工图
( E  H: Z( s5 ^5 t& h- X5 [: t9 t9 d& H项目位置:广东
3 u. V% ~+ @7 ~4 B* s" }设计风格:现代风格
+ a9 c* l5 z3 G包含图片:效果图
8 W$ {$ z9 `$ x/ z' C- j* V* k5 {2 m楼层数:5层
# s! q8 ^0 B1 ~% L% s, ` 01.jpg
  z7 s, d8 N& t0 q! J! r 02.jpg
' r( ]* L- z$ b+ j0 G 03.jpg 1 X+ k3 F. J/ w: j" k$ t' u
04.jpg 9 ^/ a, C" |" \4 ?
05.jpg
& V% X# s( z$ @0 ?: ?$ V 06.jpg + m+ f! n/ G0 ^4 v$ {, @
07.jpg
5 _4 F# B* D  i6 Z9 g4 H+ b 08.jpg
* V5 k7 B3 ^8 N4 D, K 09.jpg ' d% B- F" y9 v: S6 j
10.jpg ' Z( ]6 k# ]) H! Z7 T
11.jpg
/ x) L! u7 }$ e4 {4 f 12.jpg
! \6 h3 \% {) Q3 Q! R5 V/ a+ A A (1).jpg
5 U2 H% z6 p5 F6 l A (4).jpg 9 X2 b) x+ i1 U
A (5).jpg ' W) A6 N/ C9 d- U# v! l) S
A (6).jpg
. T. d: F/ G' Q* m( R A (8).jpg
0 }0 x* ~; i% h( v A (9).jpg 8 u" m& p. c) `1 p5 Q) S
A (10).jpg . R. V) @% Q7 L, }
A (11).jpg 7 Z- M# X; e. u. ?! @
A (12).jpg & B) G" Y/ F; Y1 i5 ?
A (15).jpg 7 s/ n+ A/ W4 B/ H
A (16).jpg
! [, T$ c) J* K2 o; i6 k' O A (17).jpg
1 ]0 G& h" c* w" t A (18).jpg
1 \# b  q9 c: O1 Y* a8 |( T A (20).jpg
& l. V; s7 M  _5 |& a: a4 h A (23).jpg
( }8 [# \$ T2 Y5 n& b$ X' ~$ G  S" h A (25).jpg
: }. {, U6 ?& x0 j# J8 E. F+ f8 r' {
回复

使用道具 举报

免责申请:①本站仅提供上传平台服务,用户可上传资料且通过审核后可获取“酷币”,每日登录也可免费获得;会员费用仅作用于平台服务费! ②本站不提供任何保证,并不承担任何法律责任,如有侵犯您的相关权益,请提供相应的资质证明,邮件联系站长删除!
在线客服(工作时间:10:00-22:00)
设计干货分享

Copyright   ©2015-2016  酷模吧  Powered by©技术支持:www.kumo8.com     ( 苏ICP备19074792号-1 )