金地紫乐府住宅装饰设计丨施工图+效果图+ 3D模型 - CAD图库丨图纸 酷模设计吧-名师方案-设计案例-软装素材-CAD素材-SU/3D模型-设计师干货打包下载!

金地紫乐府住宅装饰设计丨施工图+效果图+ 3D模型

[复制链接]
kuum 发表于 2020-11-10 13:12:46 | 显示全部楼层 |阅读模式
家装空间
家装分类: 精品样板间
风格分类: 中式风格
请点击此处下载

请先注册会员后再进行下载

已注册会员,请先登录后下载

售价:45 酷币  |   | 收藏数量:8  
下载权限: 不限  (已享有下载权限 ) 以上或 VIP会员   [开通 VIP 会员]  [下载说明,如何下载?]


5 i! H: }/ m) f/ `1 t! I内容简介: 金地紫乐府住宅装饰施工图+效果图+ 3D模型" a& G) ]$ C9 Q6 U+ s, j
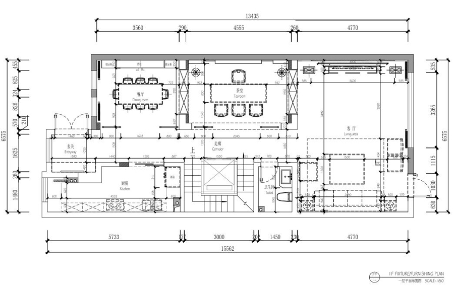
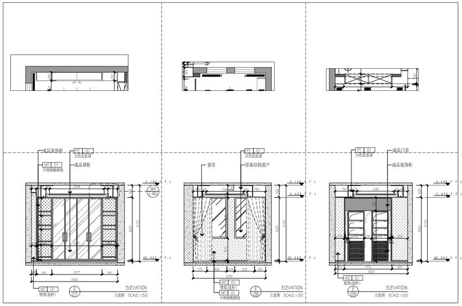
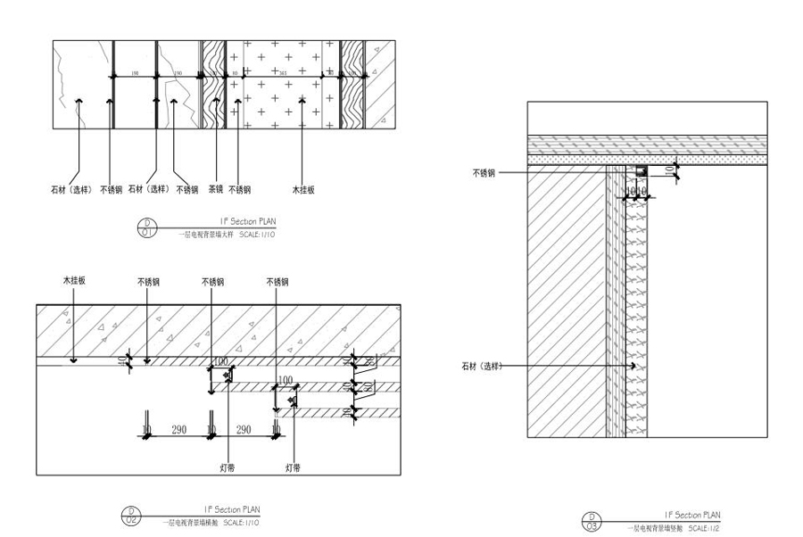
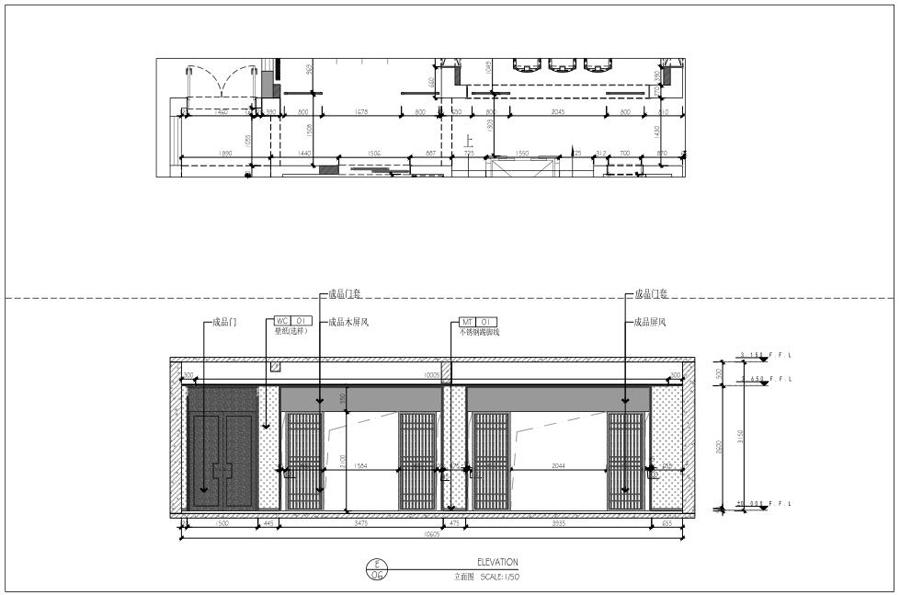
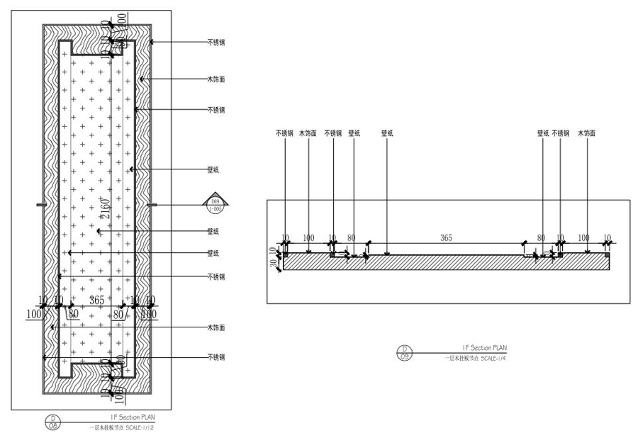
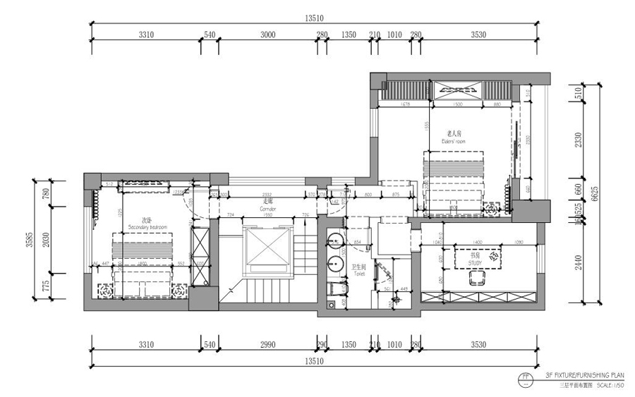
资料内容包含:CAD施工图 封面,图纸目录,装饰设计说明、图例说明、材料表、总平面图、原始平面图、平面图布局图、平面配置图、立面索引图,隔墙定位图,地坪布置图,综合天花图,灯具连线图 等
; X* v- Q, h4 _* m7 z3 T) i/ t  n空间划分:三居室7 A; |# m7 ?  V! C
结构类型:平层
8 K& R9 |2 S% |* R1 r: C) _+ V图纸深度:施工图
6 G, q3 S3 n$ M3 D7 @项目位置:广东
% d0 J) S% j) a" n; R
01.jpg
: E$ I# ?$ t% h5 Y! V4 L3 S, E 02.jpg
" c8 D# b0 r8 ~ 03.jpg
1 r  o! k- _' e* G% ] 04.jpg * F5 \0 g8 S* x; S# V
05.jpg
5 a9 v) W$ c2 L$ {' c 06.jpg 9 [8 u4 G/ T9 {& Y3 h; r
07.jpg
( }! R( z9 N9 e) q* I1 z 08.jpg * b* v" a% g- L, G9 B3 D" G
09.jpg
6 ~& `3 e! A$ L9 o: {# S3 _" N" ~; ] 10.jpg & \2 @$ p2 W. Y: P( W7 ]
效果图 (1).jpg
$ V6 Y! n% t2 [, ^( ]6 R 效果图 (2).jpg
, M, _: p) ]/ \" ^$ _! i( @9 }0 x 效果图 (3).jpg $ w2 K1 ?0 t: h. J# e+ v
效果图 (4).jpg 4 A; `' R  F9 R4 D  B+ [
效果图 (5).jpg 3 E2 s& U6 E6 B. h. x4 l. B
效果图 (6).jpg
0 P% A! z6 D2 |* d. E 效果图 (7).jpg
7 u* S0 r3 l' H0 B- o) q0 k  R 效果图 (8).jpg
3 s7 Y# Q6 E% Q. _4 k 效果图 (9).jpg 2 Q: L% j; S+ e+ F3 h% `
效果图 (10).jpg
- b+ k- K$ p( @2 h5 Y
% M6 N! L9 P4 G: E3 ]2 {
2 D/ S- [. ?$ c9 g* c4 I( p8 q9 Z  X- u+ s- k, W4 M
# D+ m: j* C6 J5 o) t1 q: ~! V, B
回复

使用道具 举报

免责申请:①本站仅提供上传平台服务,用户可上传资料且通过审核后可获取“酷币”,每日登录也可免费获得;会员费用仅作用于平台服务费! ②本站不提供任何保证,并不承担任何法律责任,如有侵犯您的相关权益,请提供相应的资质证明,邮件联系站长删除!
在线客服(工作时间:10:00-22:00)
设计干货分享

Copyright   ©2015-2016  酷模吧  Powered by©技术支持:www.kumo8.com     ( 苏ICP备19074792号-1 )