新中式禅意秀茶亭会所丨全套CAD施工图+效果图 - CAD图库丨图纸 酷模设计吧-名师方案-设计案例-软装素材-CAD素材-SU/3D模型-设计师干货打包下载!

新中式禅意秀茶亭会所丨全套CAD施工图+效果图

[复制链接]
kuum 发表于 2020-11-11 15:05:40 | 显示全部楼层 |阅读模式
休闲娱乐
休闲娱乐: 会所
行业: 中式风格
请点击此处下载

请先注册会员后再进行下载

已注册会员,请先登录后下载

售价:36 酷币  |   | 收藏数量:14  
下载权限: 不限  (已享有下载权限 ) 以上或 VIP会员   [开通 VIP 会员]  [下载说明,如何下载?]


- {9 R. \( m1 K$ r+ u$ M( S! n" N8 w禅意秀茶亭会所全套CAD施工图+效果图
  t% Q: S; ?0 o' [! E! s空间划分:成套休闲
$ K, N- n- Y! y, n) [7 r功能类型:商务会所,休闲会所
' u+ G6 E# p& x" V图纸深度:竣工图5 W6 G8 |: C7 y
设计风格:新中式风格
: K- U9 H6 C9 e# W" c( G图纸格式:JPG,CAD20001 I, @; B/ L8 L  n
包含图片:效果图! z* S# g1 j4 E$ T& Q9 p" t$ g
楼层数:3层
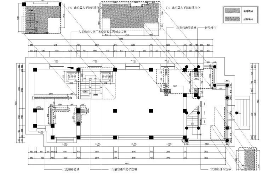
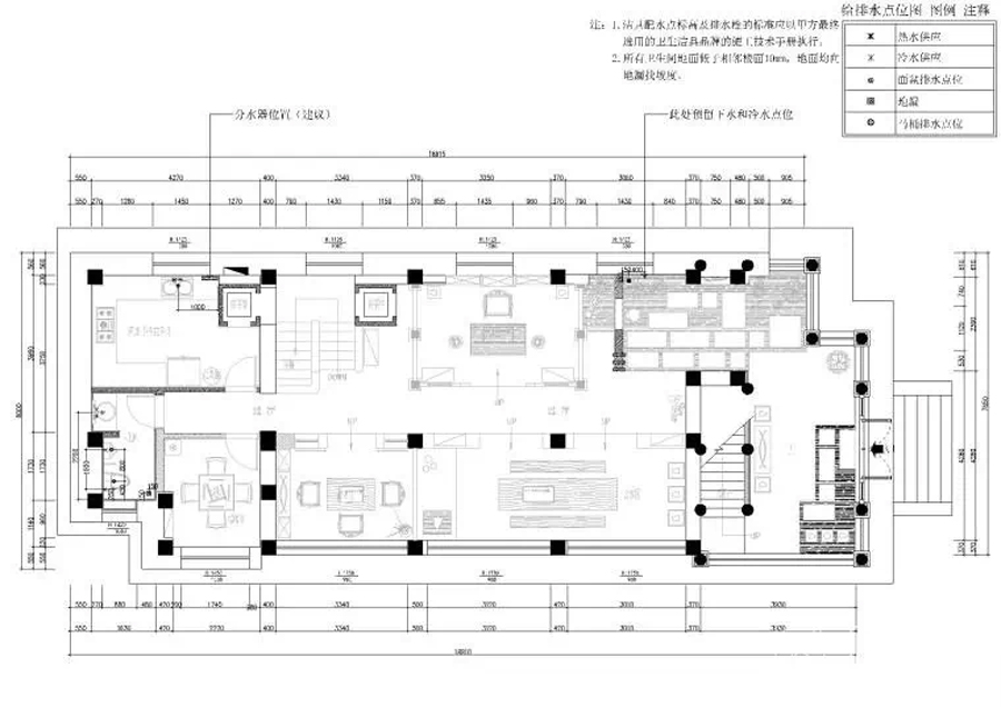
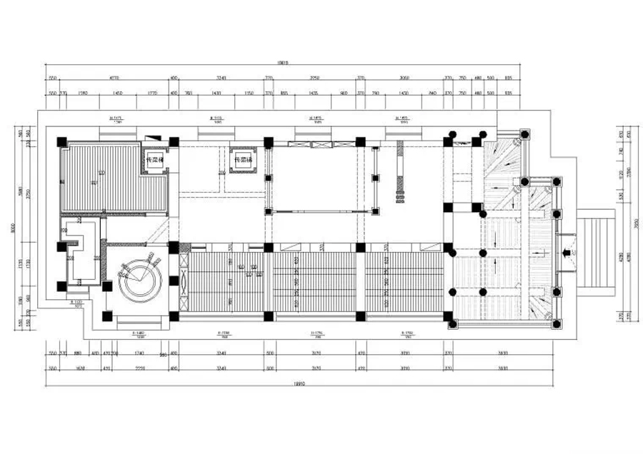
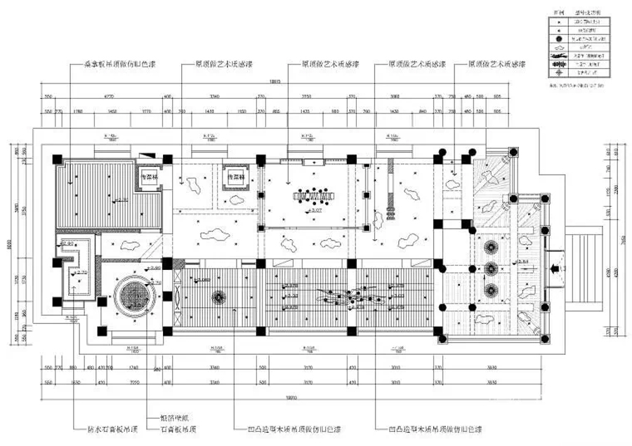
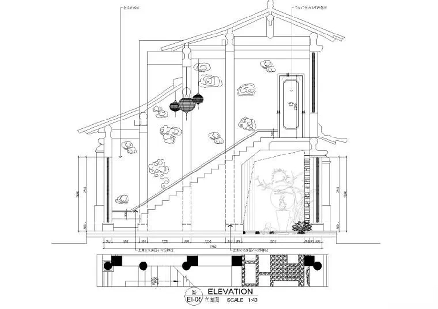
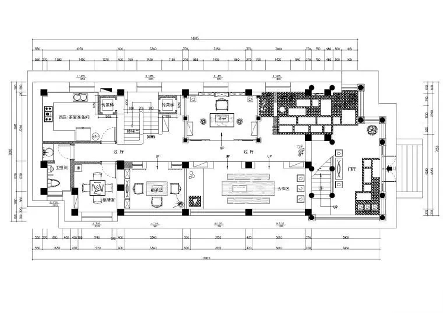
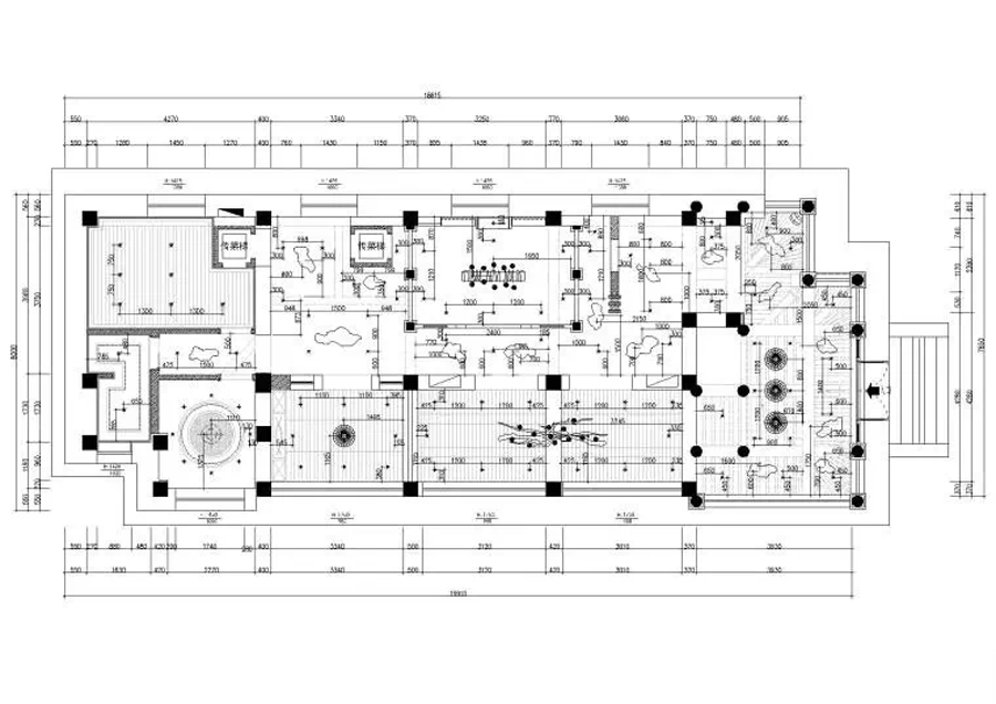
$ P$ o& `( l* P2 y" O' Y资料内容包含:效果图、CAD施工图(图纸目录,施工图设计说明、平立面图,外立面,节点大样,水电图等)施工说明,材料表等& ^9 l' Y6 S3 e  R1 B
01.jpg 3 q- O! Y4 U% b1 c
02.jpg
7 l8 i% ]" ~3 ~' D, I/ h8 s: a 03.jpg ; \5 X  Q* y( E- ^5 Z0 z
04.jpg
; J/ w6 S' N+ ]5 O. ^- \ 05.jpg
1 H9 A4 Y" N; G2 C 06.jpg   \5 P0 E, [6 s- b* K: d" l$ u
07.jpg - i. X5 a( m$ ?9 D5 q0 Y/ k
08.jpg # C4 k+ M" l9 c* j& H) v0 w' w
09.jpg $ w8 W  O( w5 n2 A. r& v
10.jpg
* D7 W( `& C# N/ D3 ?7 R* Z 秀茶亭.jpg
* X5 e" C# X0 x$ `, d 秀过厅.jpg 7 }/ U9 S  `# t! [5 @4 A
秀会客区.jpg 5 w8 o. m; L3 a" ?* I
秀就餐区1.jpg 8 G$ p0 W' y4 m& o  o
秀门厅.jpg
% T: H$ c" T+ `/ R$ }9 r1 D 秀卧室.jpg
. j8 {! x9 R* H; I2 B6 W* i 秀玄关1.jpg
, T- h! |9 d# ` 秀玄关2.jpg
, p, Y8 p6 h; \% d' b9 O4 ]( @1 b# X# C: P9 |/ j" ?1 Q
# g( F' e) }0 J, _- u  p
回复

使用道具 举报

免责申请:①本站仅提供上传平台服务,用户可上传资料且通过审核后可获取“酷币”,每日登录也可免费获得;会员费用仅作用于平台服务费! ②本站不提供任何保证,并不承担任何法律责任,如有侵犯您的相关权益,请提供相应的资质证明,邮件联系站长删除!
在线客服(工作时间:10:00-22:00)
设计干货分享

Copyright   ©2015-2016  酷模吧  Powered by©技术支持:www.kumo8.com     ( 苏ICP备19074792号-1 )