全国通用CAD隔墙节点大样详图 - CAD图库丨图纸 酷模设计吧-名师方案-设计案例-软装素材-CAD素材-SU/3D模型-设计师干货打包下载!

全国通用CAD隔墙节点大样详图

[复制链接]
kuum 发表于 2020-11-13 12:32:40 | 显示全部楼层 |阅读模式
图库节点
图库分类: 节点图库
作品来源: 珍藏
请点击此处下载

请先注册会员后再进行下载

已注册会员,请先登录后下载

售价:15 酷币  |   | 收藏数量:21  
下载权限: 不限  (已享有下载权限 ) 以上或 VIP会员   [开通 VIP 会员]  [下载说明,如何下载?]

/ h$ @) q* m/ x. D! J
全国通用隔墙节点大样详图) E8 n! J" S# f! a7 [* y
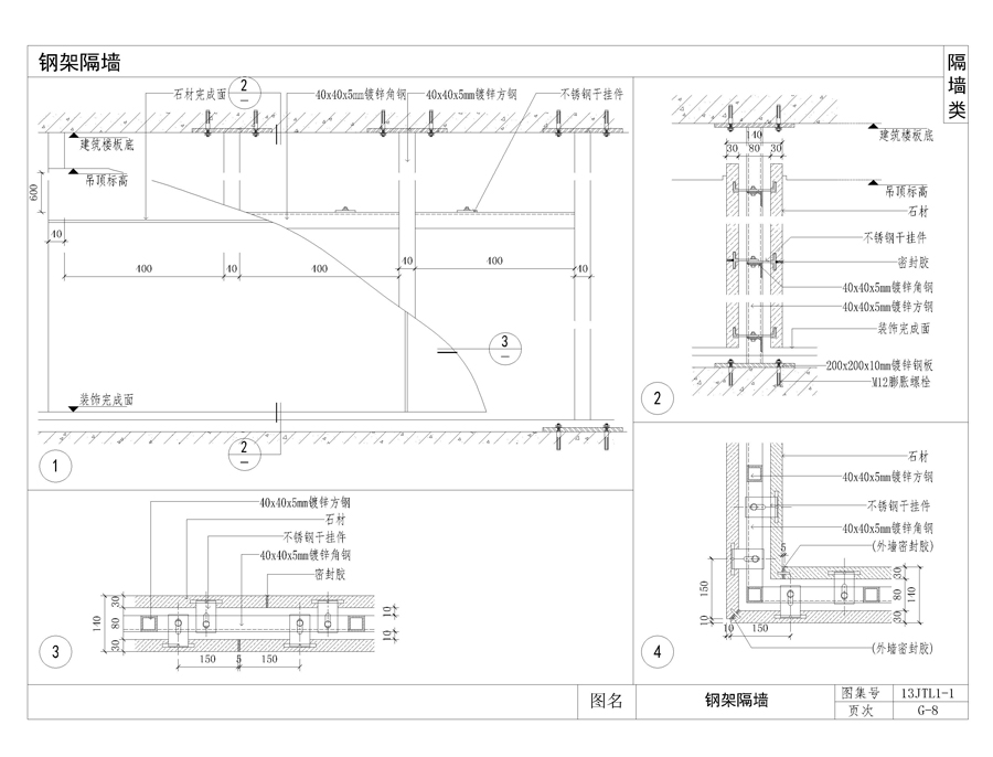
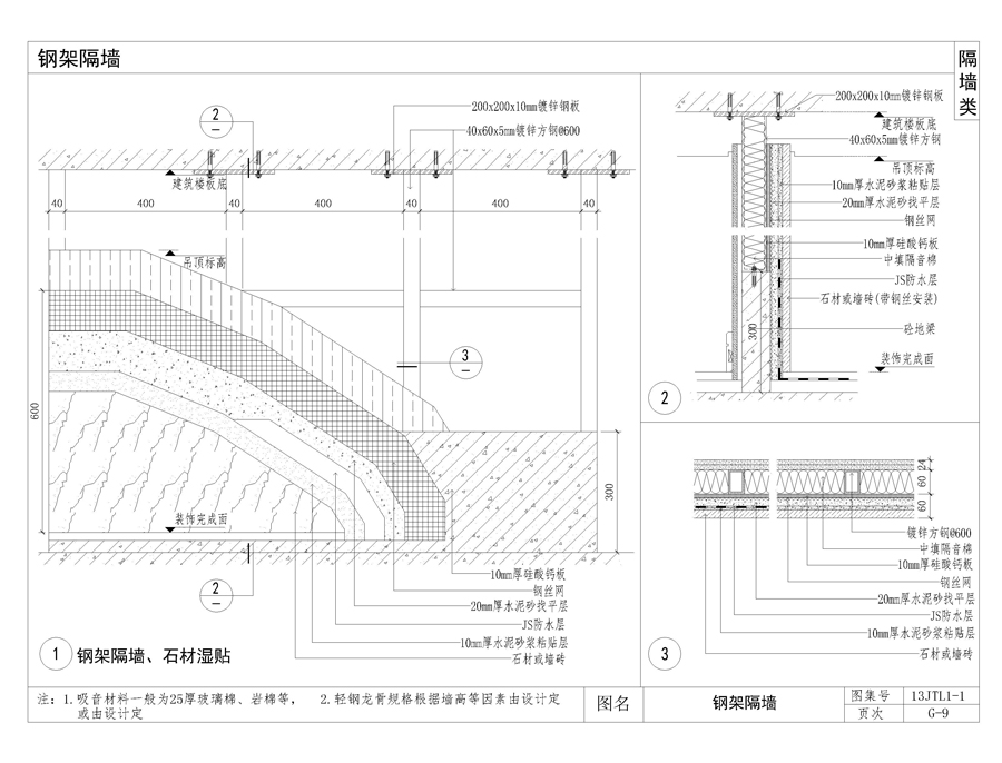
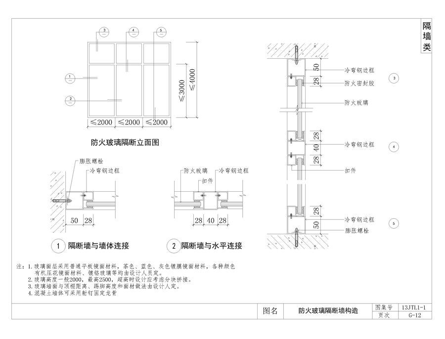
资料内容包括:轻钢龙骨隔墙节点,轻钢龙骨曲面墙组合示意图,门窗洞口龙骨加强构造,钢架隔墙节点,轻钢龙骨石膏板隔墙,防火玻璃隔断墙构造,铝合金框与防火玻璃节点,砌块隔墙节点,粘贴增强纤维水泥板墙面节点.- [, ^; x9 ~1 R; R  w
01.jpg , s/ c0 O; U& W: J9 j& ]7 H. B& Z- C
02.jpg
; q6 w# C( h! |+ o9 x 03.jpg 1 R3 T/ ~) c6 Y3 b8 w# @% O8 I" r
04.jpg
9 \# F! W( o9 g+ p 05.jpg
4 k' e0 E2 J1 e, b% i 06.jpg
0 A/ U5 @/ o3 v' Y/ _ 07.jpg
% d0 P" o, |7 V  j0 w6 \' V 08.jpg ) j9 n& B" Y* E: y
09.jpg * q  x7 v) f1 H
10.jpg
' u& E2 `. @& j6 Z 11.jpg
+ T+ h4 {  x1 k$ A9 ]& O4 m/ |- S3 E" ~! _# c+ n
回复

使用道具 举报

免责申请:①本站仅提供上传平台服务,用户可上传资料且通过审核后可获取“酷币”,每日登录也可免费获得;会员费用仅作用于平台服务费! ②本站不提供任何保证,并不承担任何法律责任,如有侵犯您的相关权益,请提供相应的资质证明,邮件联系站长删除!
在线客服(工作时间:10:00-22:00)
设计干货分享

Copyright   ©2015-2016  酷模吧  Powered by©技术支持:www.kumo8.com     ( 苏ICP备19074792号-1 )