茶会所-叙品设计-山霖水云间 丨效果图+手稿+施工图丨224M - CAD图库丨图纸 酷模设计吧-名师方案-设计案例-软装素材-CAD素材-SU/3D模型-设计师干货打包下载!

茶会所-叙品设计-山霖水云间 丨效果图+手稿+施工图丨224M

[复制链接]
kuum 发表于 2020-11-19 22:31:03 | 显示全部楼层 |阅读模式
休闲娱乐
休闲娱乐: 茶楼棋牌
行业: 中式风格
请点击此处下载

请先注册会员后再进行下载

已注册会员,请先登录后下载

售价:28 酷币  |   | 收藏数量:5  
下载权限: 不限  (已享有下载权限 ) 以上或 VIP会员   [开通 VIP 会员]  [下载说明,如何下载?]

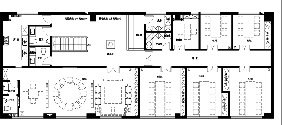
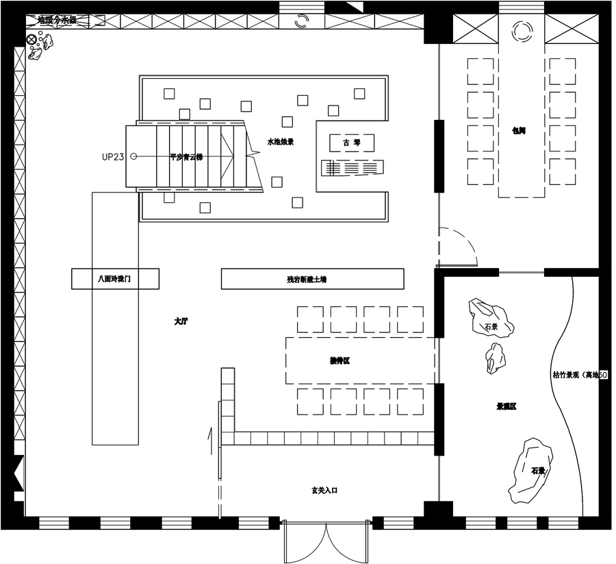
项目名称:水云间·茶会所
项目地点:新疆乌鲁木齐天津南路1号街
建筑面积:460㎡
主要材料:黑色花岗岩、火山岩、海藻泥、鹅卵石、米黄洞石、白色乳胶漆、水曲柳做旧木饰面、竹帘、实木复合地板等
设计公司:苏州叙品设计装饰工程有限公司
A (1).jpg
A (2).jpg
B (7).JPG
B (8).JPG
B (9).jpg
B (12).jpg
B (13).jpg
B (22).jpg
B (23).jpg
B (26).jpg
C (1).JPG
C (2).JPG
C (3).JPG
C (4).JPG
C (6).JPG
, z# P2 V$ b2 N/ v: c

3 P4 {4 Y0 g# K- I. K- [& p
回复

使用道具 举报

免责申请:①本站仅提供上传平台服务,用户可上传资料且通过审核后可获取“酷币”,每日登录也可免费获得;会员费用仅作用于平台服务费! ②本站不提供任何保证,并不承担任何法律责任,如有侵犯您的相关权益,请提供相应的资质证明,邮件联系站长删除!
在线客服(工作时间:10:00-22:00)
设计干货分享

Copyright   ©2015-2016  酷模吧  Powered by©技术支持:www.kumo8.com     ( 苏ICP备19074792号-1 )