ENJOY西宁万科城1700㎡售楼处丨内装CAD施工图+机电图+高清官方摄影丨137M - CAD图库丨图纸 酷模设计吧-名师方案-设计案例-软装素材-CAD素材-SU/3D模型-设计师干货打包下载!

ENJOY西宁万科城1700㎡售楼处丨内装CAD施工图+机电图+高清官方摄影丨137M

[复制链接]
kuum 发表于 2021-3-31 14:40:26 | 显示全部楼层 |阅读模式
商业展览
商业空间: 售楼中心
风格分类: 现代简约
请点击此处下载

请先注册会员后再进行下载

已注册会员,请先登录后下载

售价:35 酷币  |   | 收藏数量:8  
下载权限: 不限  (已享有下载权限 ) 以上或 VIP会员   [开通 VIP 会员]  [下载说明,如何下载?]


3 M( E1 H4 P" z- O, X4 M
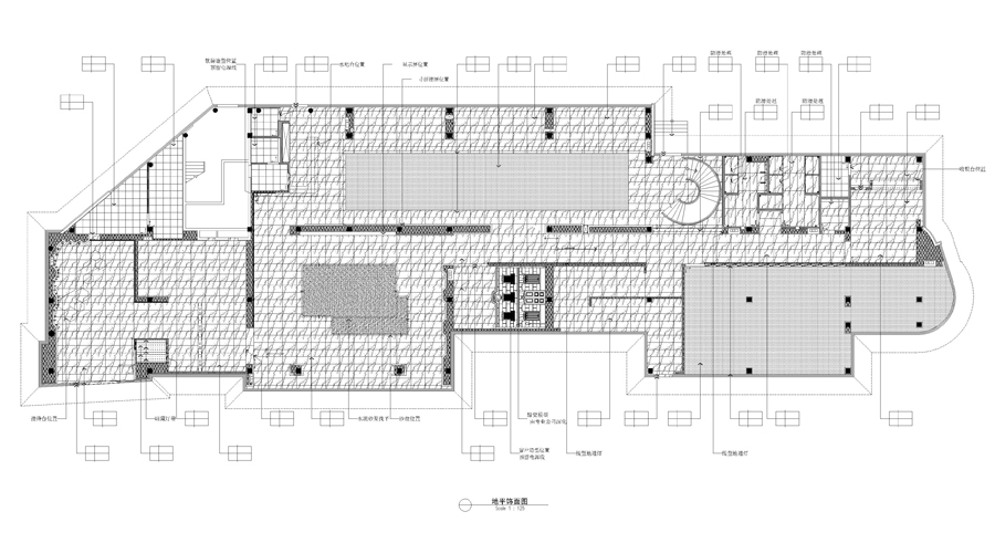
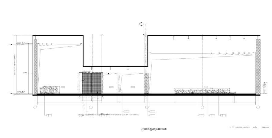
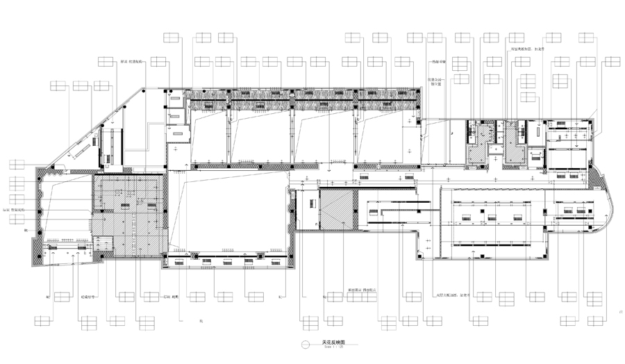
ENJOY西宁万科城1700㎡售楼处

; B( @, [4 A0 a; S4 w5 v
内装CAD施工图+机电图+高清官方摄影
  P7 m- \+ i) A1 B* S) W7 |
大小:137M

/ z/ K3 Y0 |0 n2 s
0.jpg

' U) X) J4 p) e% e4 q9 ]' R
01.jpg

+ C8 R9 i: t( e
02.jpg
! A, {" K0 v5 g1 f% K( W: v
03.jpg
7 o9 @  p- W0 P# A$ B' |
04.jpg

* z: ~3 M+ j9 R1 c$ A; {, Y& C! I
05.jpg

' Y- T* a! J5 H& ?
06.jpg

5 ?& k) U& h; w: ^& T- E
07.jpg

$ A, e& Y) F/ C/ q" R; V+ a* P
A (2).jpg
% A$ k* f; D% n; t
A (4).jpg
, a7 T$ `* i0 _( O! e- _
A (5).jpg
9 P' y- F3 l/ H8 b6 o
A (9).jpg

* W( A5 \  e# o
A (12).jpg

' J9 d1 {( {5 Q" W5 G( H
A (14).jpg

' t6 t, \  i. s
A (18).jpg

' G0 E& b" d5 \$ u0 x- B
A (20).jpg
" F1 F; p* a5 x
A (21).jpg

& v' j" k# ^6 L( C' Q0 p8 I
A (22).jpg

0 d3 G* j5 [; M6 m; _
A (23).jpg
$ n7 C, L! b/ L( C- g6 {) E
A (25).jpg
; O( F5 p! V8 e6 r0 C% W
A (26).jpg
, }( t7 l' M9 I( z) g6 b  i
A (30).jpg

  b" R" n/ l) g- J6 T- j
A (32).jpg
$ z, v- m! D3 W( N  e: ~: X
A (34).jpg
& H9 m+ y( `% i; `" Q9 H6 Y

, z4 f$ L' v7 m4 p3 q
回复

使用道具 举报

免责申请:①本站仅提供上传平台服务,用户可上传资料且通过审核后可获取“酷币”,每日登录也可免费获得;会员费用仅作用于平台服务费! ②本站不提供任何保证,并不承担任何法律责任,如有侵犯您的相关权益,请提供相应的资质证明,邮件联系站长删除!
在线客服(工作时间:10:00-22:00)
设计干货分享

Copyright   ©2015-2016  酷模吧  Powered by©技术支持:www.kumo8.com     ( 苏ICP备19074792号-1 )