绍兴源盛·云锦中心325㎡大平层丨官方摄影+全套施工图+视频 - CAD图库丨图纸 酷模设计吧-名师方案-设计案例-软装素材-CAD素材-SU/3D模型-设计师干货打包下载!

绍兴源盛·云锦中心325㎡大平层丨官方摄影+全套施工图+视频

[复制链接]
kuum 发表于 2021-9-18 12:11:50 | 显示全部楼层 |阅读模式
家装空间
家装分类: 精品样板间
风格分类: 现代简约
请点击此处下载

请先注册会员后再进行下载

已注册会员,请先登录后下载

售价:30 酷币  |   | 收藏数量:12  
下载权限: 不限  (已享有下载权限 ) 以上或 VIP会员   [开通 VIP 会员]  [下载说明,如何下载?]

3 w5 D0 E. x/ Z- s! o- _; L
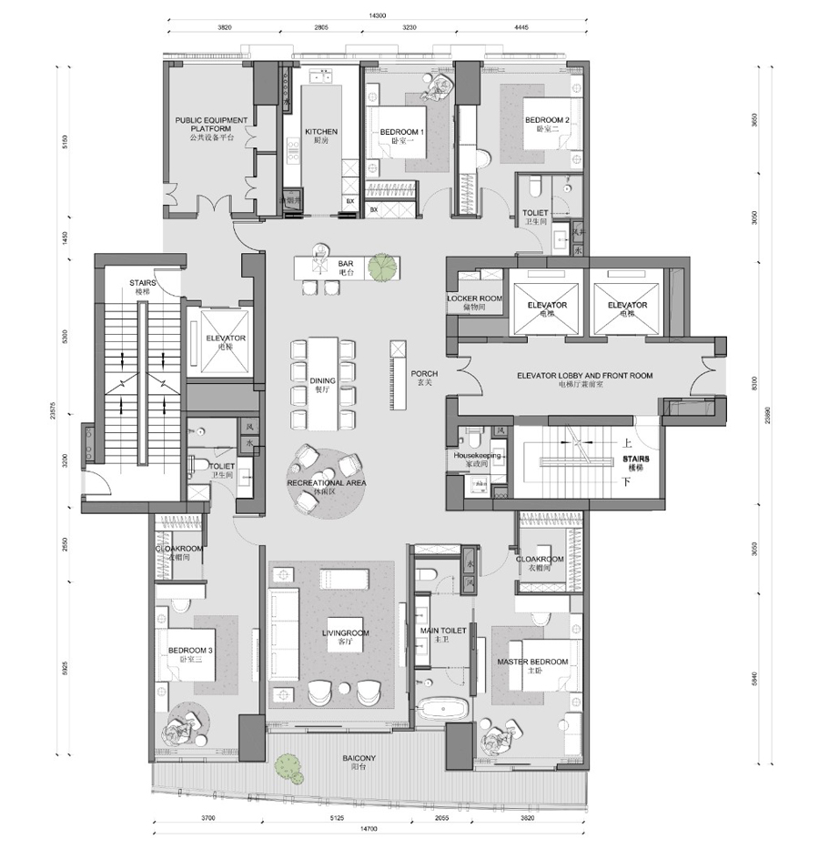
325㎡现代简约样板间
: ^6 }& g! `$ [8 G2 t# _" c6 m如果说A1户型体现国际都市风范,B1户型则更能体现古典名城的特质,不落俗套的东方奢华风格,体块为先的利落手法,该户型在设计的藏、露上更符合中式审美的风情。0 x5 H, F2 S2 L; @
步入空间,玄关的装饰设计首先体现了这点。木栅格遮而不拦,反而透露出透叠的视觉效果,让人提起对背后景致的兴趣,相当巧妙。
6 u4 M/ k0 Y" i: t1 v# j4 O! m* T% e' F
设计上顺势而为:结合原来建筑深长的结构,设计师把客厅-休闲区-餐厅-吧台-厨房整合成一个超尺度的大横厅,动线流畅,功能区齐全,令整体空间呈现出奢侈的通透和宽阔。
- L; i, S. L  [, |) G. {+ c- [, u设计师打开原隔断,梳理厨房和餐厅之间的流线,增设西厨吧台和社交厨房的概念。中西合璧,体现着空间豪宅气质,更流露出主人与绍兴名城的文化自信。* G) v) W7 k. M( p

: b6 z6 v, c4 h2 n作为大横厅的中点,休闲区采用红色的落地小酒橱打破创造色彩节奏,乍眼一看有点像柴火正旺的壁炉。当浮一大白,这里也就顺理成章地成为全场视觉和社交的焦点。: ^9 M2 H: Z9 T, ~0 e& d
在房间的设计上,设计师也延续了藏、露的手法。南向另一个套间的房门便巧妙地隐藏在休闲区的背景墙中。鲜嫩感的粉红色充满年岁温柔的气息。
/ c9 x1 R6 O6 h% R6 I( _4 P: o6 x; b( }# i
亮丽的红色提升了主卧的气质。春风扶槛露华浓,一枝红艳露凝香。现代中式的典雅氛围,无处着笔,又处处见神妙。
2 H5 B% z5 Q+ [; Y在主卧与主卫的隔断上额外开辟一个被黄铜元素塑造的门洞,露出浴缸区。覆上影影绰绰的百叶窗,打破立面的沉闷,体现了penthouse家居生活的额外趣味。- ^: T  e/ t8 O2 E

! ]; a# h, ]9 k2 J作为高端综合社区,云锦中心同时运营着绍兴罕有的管家服务级酒店式公寓。延续缔造每个高层豪宅单元独特空间体验的精神,设计师赋予——无论是酒店大堂或是公寓单元——独一无二的归家仪式感和尊贵感。4 |& x: O: ]$ i8 [- w0 Y6 J
1 q& L: |$ {" _2 A# n% P1 ~, b
这不但是献礼柯桥新区的发展,更是发挥全案式设计策划的匠心和精心所在。关于这座地标建筑的故事,未完待续……# d% V" Z4 f6 t4 Z6 c) g/ y
平面.jpg
8 l  R6 T# o3 B& E. _ 摄影 (1).jpg ; G8 z  d: z' `% Z
摄影 (2).jpg 3 Z& g( @4 q# O5 x6 w1 f& C' u
摄影 (3).jpg ! h' W+ q8 H  f$ j3 r
摄影 (4).jpg
* ~) L6 @$ l, O 摄影 (5).jpg
' j4 k  N0 i3 e* |4 V7 N8 [ 摄影 (6).jpg " `1 `. ]( @3 [% T1 x( t
摄影 (7).jpg
5 D" ?6 b+ u9 Z3 @5 s; J  t 摄影 (8).jpg
1 b# R) I0 X- a 摄影 (9).jpg * l9 y1 x5 |& Q' t# y+ B2 f
摄影 (10).jpg
" e+ R. e9 K- t4 ]7 d 摄影 (11).jpg
# w: U% m$ a4 \5 \0 n4 U6 E9 ~+ P 摄影 (12).jpg
: a( n" V$ r- t 摄影 (13).jpg 3 L- d$ ~* Z" y% Q7 h# s2 h# A2 B
摄影 (14).jpg " Z' U1 a  @- U( `3 {( v  u
摄影 (15).jpg
9 ^! c2 p& n6 K8 U+ i) H; O 摄影 (16).jpg ) j2 T) f0 x' S2 C
0 o" M7 U4 G! z7 r& \4 d
回复

使用道具 举报

免责申请:①本站仅提供上传平台服务,用户可上传资料且通过审核后可获取“酷币”,每日登录也可免费获得;会员费用仅作用于平台服务费! ②本站不提供任何保证,并不承担任何法律责任,如有侵犯您的相关权益,请提供相应的资质证明,邮件联系站长删除!
在线客服(工作时间:10:00-22:00)
设计干货分享

Copyright   ©2015-2016  酷模吧  Powered by©技术支持:www.kumo8.com     ( 苏ICP备19074792号-1 )