逸尚东方-巴黎的浪漫别墅样板间丨CAD施工图+实景图丨123M - CAD图库丨图纸 酷模设计吧-名师方案-设计案例-软装素材-CAD素材-SU/3D模型-设计师干货打包下载!

逸尚东方-巴黎的浪漫别墅样板间丨CAD施工图+实景图丨123M

[复制链接]
kuum 发表于 2021-11-8 21:21:34 | 显示全部楼层 |阅读模式
家装空间
家装分类: 别墅豪宅
风格分类: 欧式美式
请点击此处下载

请先注册会员后再进行下载

已注册会员,请先登录后下载

售价:30 酷币  |   | 收藏数量:6  
下载权限: 不限  (已享有下载权限 ) 以上或 VIP会员   [开通 VIP 会员]  [下载说明,如何下载?]


2 o$ _1 {7 ]/ T
逸尚东方-巴黎的浪漫别墅样板间
1 G2 r2 _+ b6 N
CAD施工图+实景图

2 Q- @# b8 c3 N+ |1 ~8 t6 \8 @
大小123M
$ T: |& O' l! v9 ]' K+ Y  k# }6 O
02-客厅.jpg

1 n" F  p: U/ k8 `* d
03-客厅小景.jpg

6 j; S. J; O; x. Y  @/ n) k$ q( l- M
04-餐厅.jpg

* `8 Z8 d4 n& H. \# H1 I
06-主卧.jpg
; O% C5 [  i1 U6 `0 L5 b
08-书房.jpg
; B! H* k, i  |9 ?) e9 `# L1 t2 U
09-长辈房.jpg
; _) a  z1 r! S0 ~& R
11-女孩房.jpg

& M- s- e0 ^2 o+ @5 O
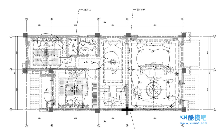
二层机电图.jpg
5 r' ~. n* l/ K$ D6 q  [
二层开关布置图.jpg

" |$ V; H9 Y- R4 s& r: O- @: U$ {
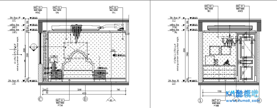
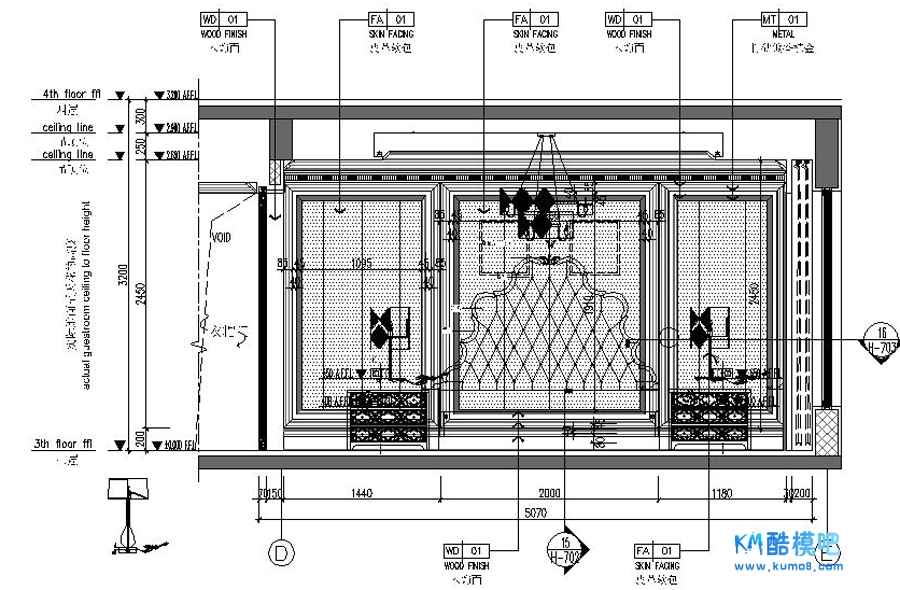
二层立面图01.jpg
3 s: Y0 N* @7 C7 ?, M3 }$ m
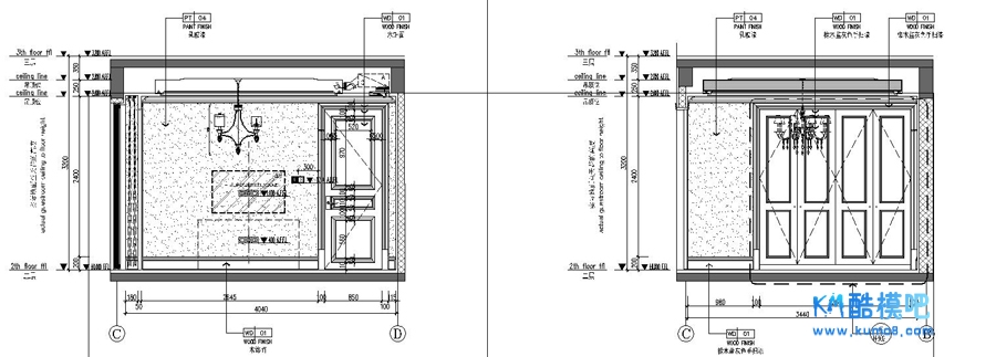
二层立面图02.jpg
# e' d3 ]( a* Y5 z/ z
二层立面图05.jpg

& Y4 ^  p3 X. X+ g1 A5 `' i; f9 q
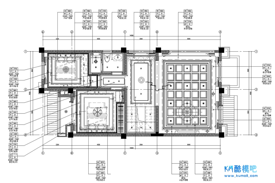
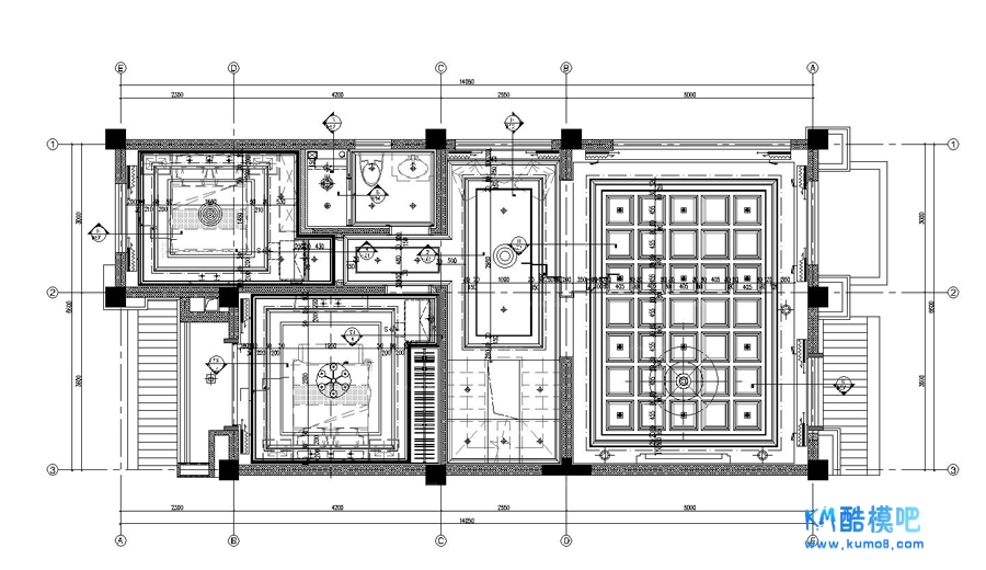
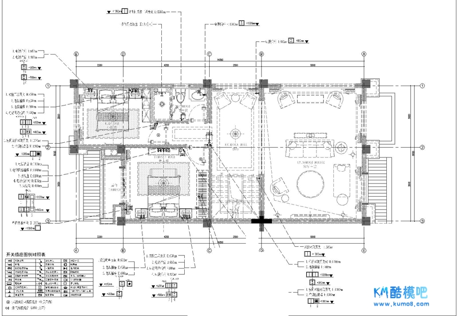
二层平面.jpg

0 @+ }; s* n( B) m, g1 t8 \
二层天花布置图.jpg

. [2 I. U  T3 z9 ?4 ]7 c
二层天花尺寸图.jpg

; i/ ?2 A) f7 Y0 |% o  l/ f6 R; S* O& a
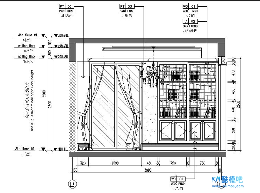
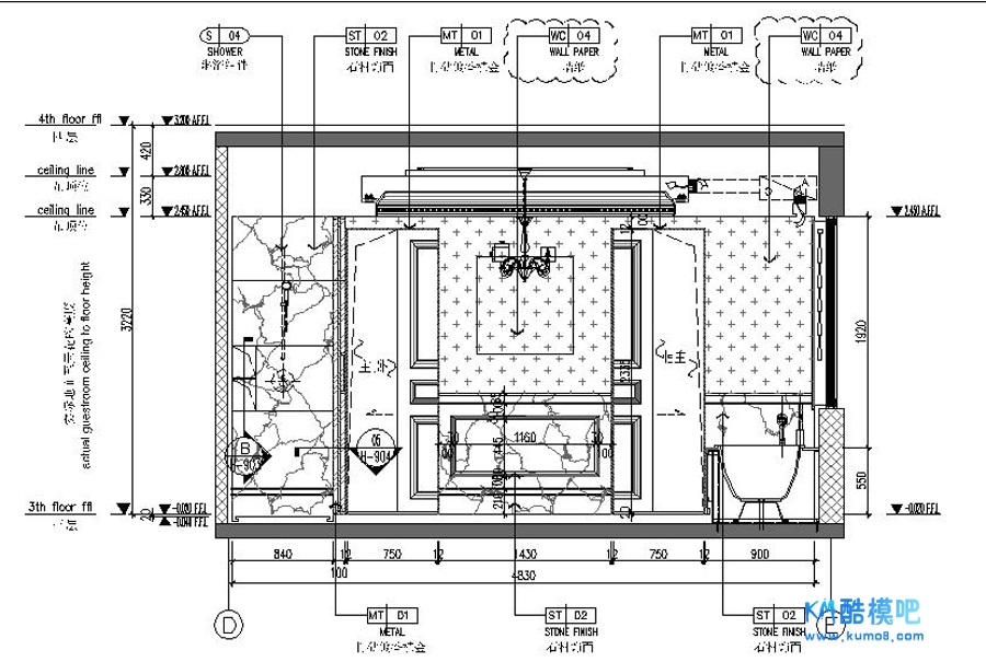
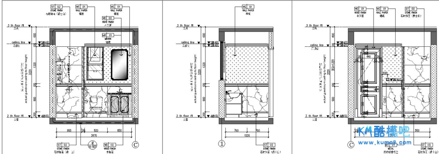
三层立面图.jpg

' Z& d' I% R, a+ F3 r( p
三层立面图02.jpg

! l9 r3 f4 |6 X2 Z) Z9 {( o
三层立面图03.jpg
1 u" ~/ g, ~3 m+ b
三层立面图04.jpg

. v) B4 b9 Y4 _& r
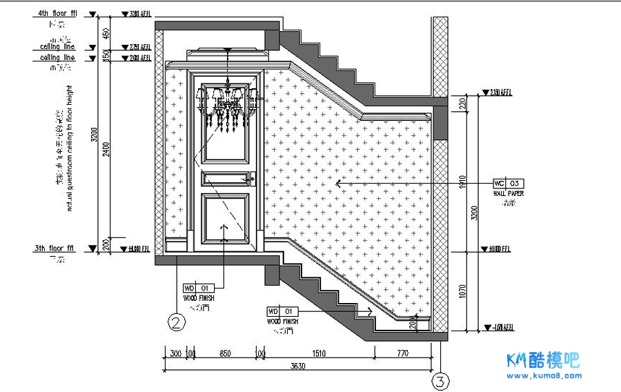
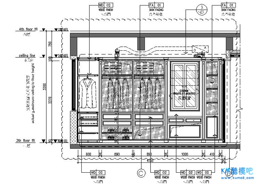
三层立面图05.jpg
7 j+ i# ^5 E0 B# v0 q0 `
) l& m7 |5 p! P1 ?7 X' H
回复

使用道具 举报

免责申请:①本站仅提供上传平台服务,用户可上传资料且通过审核后可获取“酷币”,每日登录也可免费获得;会员费用仅作用于平台服务费! ②本站不提供任何保证,并不承担任何法律责任,如有侵犯您的相关权益,请提供相应的资质证明,邮件联系站长删除!
在线客服(工作时间:10:00-22:00)
设计干货分享

Copyright   ©2015-2016  酷模吧  Powered by©技术支持:www.kumo8.com     ( 苏ICP备19074792号-1 )