设为首页
收藏本站
开启辅助访问
我的收藏
首页
Portal
分类
BBS
模型集
CAD素材
设计尖货
文本方案
VIP会员
充值
本版
帖子
用户
QQ登录
微信登录
忘记密码?
注册
登录
SU模型库
3D模型库
材质贴图
国际大咖
作品合辑
文本方案
设计图库
软装概念
软件插件
设计提升
SU模型
3D模型
材质贴图
图库节点
家装图纸
酒店餐饮
办公会议
商业空间
休闲娱乐
文化场馆
书籍手册
国际大咖
案例合辑
软装概念
施工图集
酷模设计吧-名师方案-设计案例-软装素材-CAD素材-SU/3D模型-设计师干货打包下载!
»
分类
›
设计资源
›
优秀作品集
›
2022工装空间平面布局方案参考图集
返回列表
发布主题
2022工装空间平面布局方案参考图集
[复制链接]
匿名
发表于 2022-1-14 10:38:13
|
阅读模式
设计尖货
分类:
设计案例
选择:
工装空间
请点击此处下载
请先注册会员后再进行下载
已注册会员,请先登录后下载
售价:
99 酷币
|
|
收藏数量:
83
下载权限:
不限
(已享有下载权限 )
以上或
VIP会员
[开通 VIP 会员]
[下载说明,如何下载?]
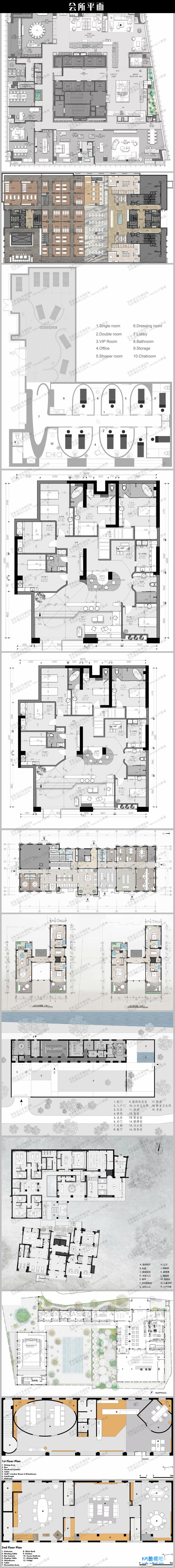
新整-工装空间
平面布局方案参考图集
酒店丨办公丨餐饮丨售楼丨会所丨民宿丨展厅
总计6160张图 大小2.2G
回复
使用道具
举报
返回列表
免责申请:①本站仅提供上传平台服务,用户可上传资料且通过审核后可获取“酷币”,每日登录也可免费获得;会员费用仅作用于平台服务费! ②本站不提供任何保证,并不承担任何法律责任,如有侵犯您的相关权益,请提供相应的资质证明,邮件联系站长删除!
浏览过的版块
CAD图库丨图纸
3DMAX模型
快速回复
返回顶部
返回列表